Owner Manual (Spanish)

x Página x xx Página x xGuía previa a la entrega Página 8
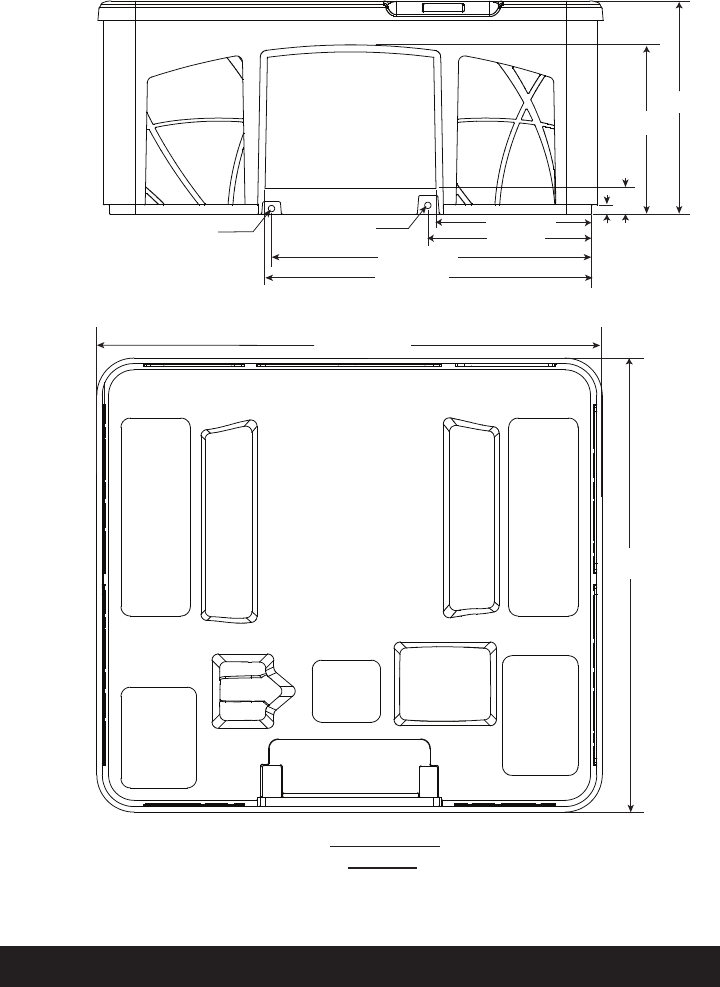
LS350DX/PLUS
Dimensiones
NOTA: todas las dimensiones son aproximadas; mida su
spa antes de tomar decisiones fundamentales, tanto sobre
el diseño como sobre los accesos.
LADO DE LA
PUERTA
Vista frontal
Vista inferior
LS350 DX
51” (130 cm)
52” (132 cm)
1.5”
(4 cm)
27” (69 cm)
ELECTRICAL
DRAIN
34” (86 cm)
81” (206 cm)
72” (183 cm)
26” (66 cm)
4”
(10 cm)
25” (63.5 cm)