Owner Manual (Spanish)

x Página x x
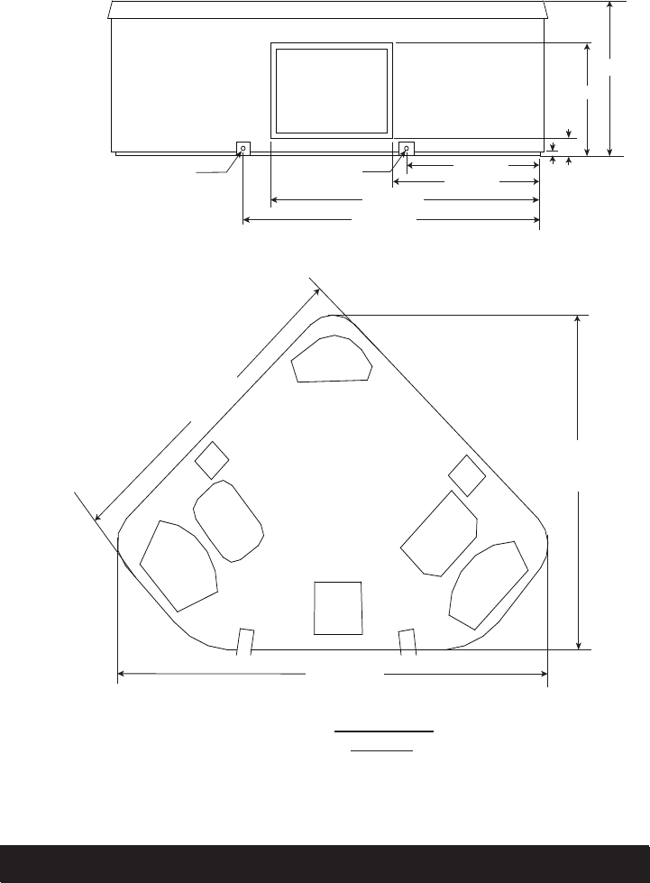
LS300 PLUS
Dimensiones
NOTA: todas las dimensiones son aproximadas; mida su
spa antes de tomar decisiones fundamentales, tanto sobre
el diseño como sobre los accesos.
Página 7 Guía previa a la entrega
LADO DE LA
PUERTA
Vista inferior
Vista frontal
LS300
60” (152 cm)
66” (168 cm)
1”
(2.5 cm)
23” (58 cm)
ELECTRICAL
DRAIN
31” (79 cm)
98” (249 cm)
67” (170 cm)
33” (84 cm)
3.5”
(9 cm)
30” (76 cm)
72” (183 cm)