Owner Manual (Spanish)

x Página x xGuía previa a la entrega Página 12
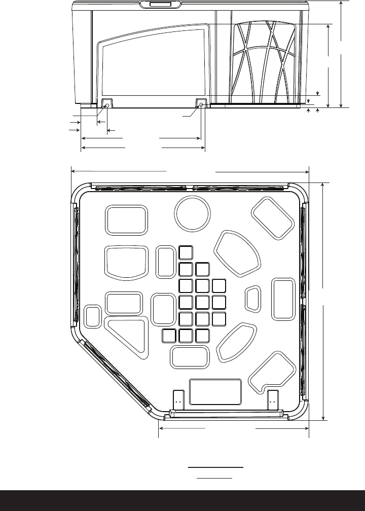
SERENO
Dimensiones
NOTA: todas las dimensiones son aproximadas; mida su
spa antes de tomar decisiones fundamentales, tanto sobre
el diseño como sobre los accesos.
Vista frontal
Vista inferior
LADO DE LA
PUERTA
Transport
38” (96.5 cm)
39” (99 cm)
1”
(2.5 cm)
27” (68.6 cm)
ELECTRICAL
DRAIN
34” (86.4 cm)
75” (190.5 cm)
75” (190.5 cm)
8” (21 cm)
4”
(10 cm)
7” (18 cm)
48.5” (123 cm)