Owner Manual (Spanish)

LS500/550
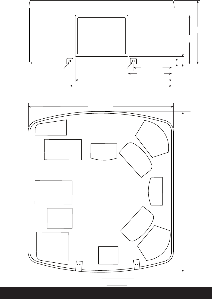
Dimensiones
NOTA: todas las dimensiones son aproximadas; mida su
spa antes de tomar decisiones fundamentales, tanto sobre
el diseño como sobre los accesos.
x Página x xGuía previa a la entrega Página 10
Aryana
27” (69 cm)
55” (140 cm)
58” (147 cm)
1.5”
(3.8 cm)
26” (66 cm)
ELECTRICAL
DRAIN
34” (86.4 cm)
77” (195.5 cm)
87” (221 cm)
24.5” (62 cm)
4”
(10 cm)
Vista frontal
LADO DE LA
PUERTA
Vista inferior