Owner Manual (French)

Guide de pré-livraison
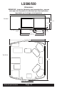
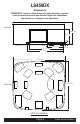
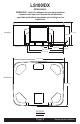
Veuillez prendre le temps de lire cette brochure avec soin, car elle vous fournira les informations dont vous aurez
besoin pour garantir l'installation sécurisée et rapide de votre nouveau spa. Les sections suivantes indiquent
comment se préparer à la livraison et la configuration de votre nouveau spa. Vous trouverez la sélection de site,
l'accès pour la livraison, la préparation du sol et les exigences électriques.
N'oubliez pas de lire soigneusement le manuel d'utilisation qui accompagne votre spa. Vous le trouverez dans le kit
fourni au propriétaire.
Watkins Wellness™ se réserve le droit de modifier les spécifications ou le modèle sans préavis ni obligation
quelconque.
DATE D’ACHAT : ____________________________________________________________________
Dans la plupart des localités, il est nécessaire de demander un permis pour l’installation de circuits
électriques ou la construction de bâtiments extérieurs (terrasses et belvédères). De plus, certaines
communautés imposent des codes régissant la délimitation des propriétés par des clôtures ou des barrières à
fermeture automatique afin d’empêcher les enfants de moins de cinq ans d’accéder à une piscine (ou à un spa)
sans surveillance. Votre spa est équipé d’une couverture verrouillable, conforme à la norme de sécurité américaine
ASTM F1346-91. Aussi échappe-t-il fréquemment à cette obligation de clôture. D’une manière générale, toutes
les exigences en vigueur concernant la clôture des propriétés vous seront communiquées par les autorités locales
lorsque vous demanderez le permis d’installation d’un circuit électrique.
Pour le service clientèle, veuillez appeler le (888) 961-7727
Nous vous félicitons d'avoir acheté un spa Lifesmart.
Bienvenue dans la grande famille des heureux propriétaires de spas
Lifesmart !

Summary of content (21 pages)