Owner Manual (English)

x Page x xx Page x xPre-Delivery Guide Page 8
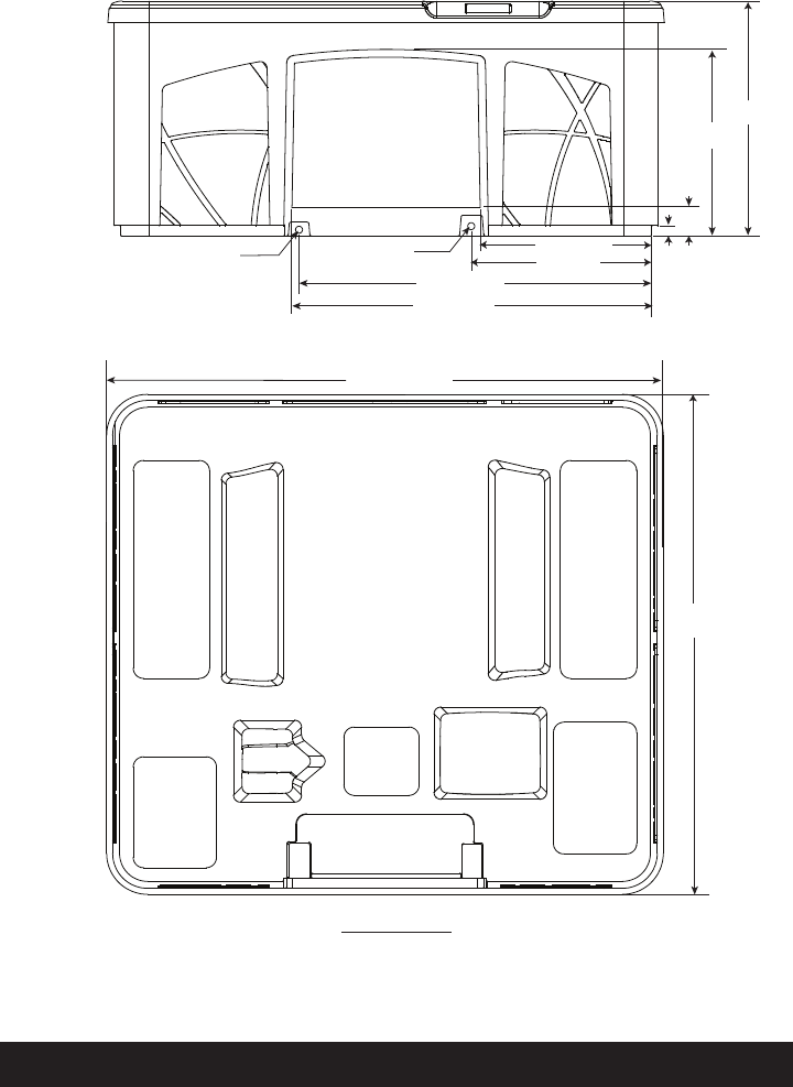
LS350DX/PLUS
Dimensions
NOTE: All dimensions are approximate; measure your spa
before making critical design or pathway decisions.
DOOR SIDE
Front View
Bottom View
LS350 DX
51” (130 cm)
52” (132 cm)
1.5”
(4 cm)
27” (69 cm)
ELECTRICAL
DRAIN
34” (86 cm)
81” (206 cm)
72” (183 cm)
26” (66 cm)
4”
(10 cm)
25” (63.5 cm)