Owner Manual (English)

x Page x x
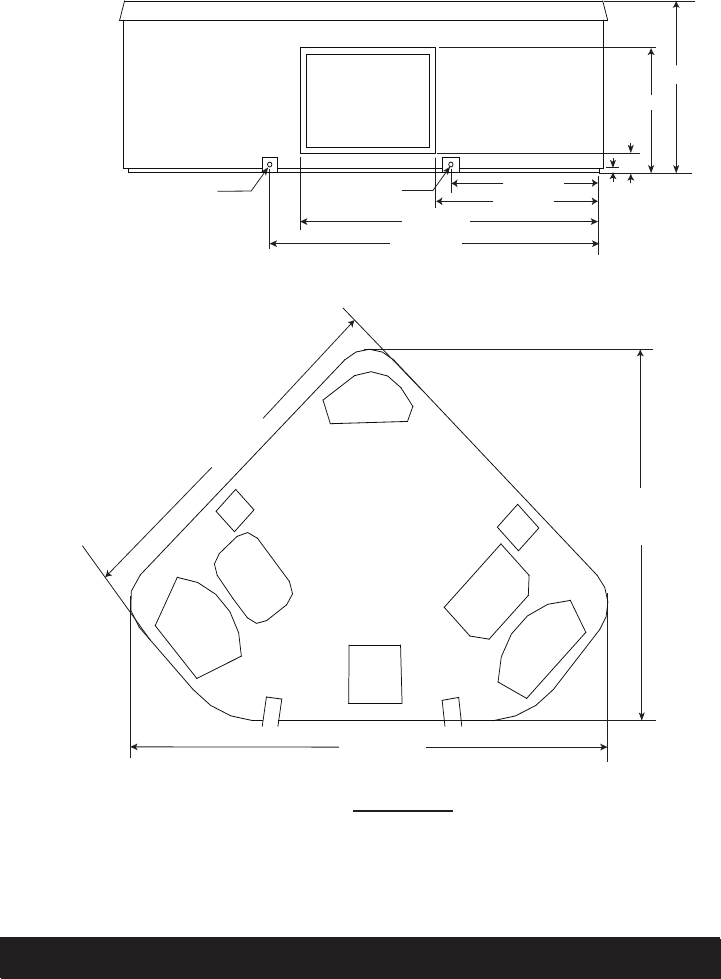
LS300 PLUS
Dimensions
NOTE: All dimensions are approximate; measure your spa
before making critical design or pathway decisions.
Page 7 Pre-Delivery Guide
DOOR SIDE
Bottom View
Front View
LS300
60” (152 cm)
66” (168 cm)
1”
(2.5 cm)
23” (58 cm)
ELECTRICAL
DRAIN
31” (79 cm)
98” (249 cm)
67” (170 cm)
33” (84 cm)
3.5”
(9 cm)
30” (76 cm)
72” (183 cm)