Owner Manual (English)

LS500/550
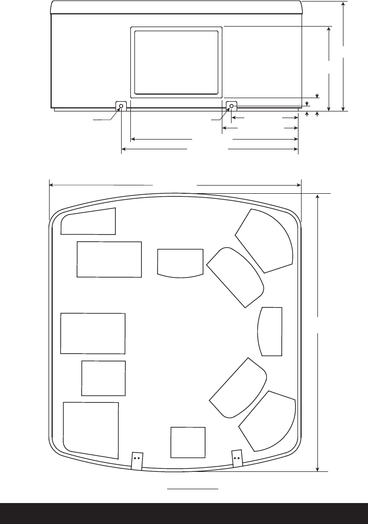
Dimensions
NOTE: All dimensions are approximate; measure your spa
before making critical design or pathway decisions.
x Page x xPre-Delivery Guide Page 10
Aryana
27” (69 cm)
55” (140 cm)
58” (147 cm)
1.5”
(3.8 cm)
26” (66 cm)
ELECTRICAL
DRAIN
34” (86.4 cm)
77” (195.5 cm)
87” (221 cm)
24.5” (62 cm)
4”
(10 cm)
Front View
DOOR SIDE
Bottom View