Owner’s Manual
Table Of Contents
- PRODUCT FEATURES
- SAFETY INSTRUCTIONS
- PRODUCT OVERVIEW
- INSTALLATION
- Installation Parts and Tools
- Installation Overview
- Product Dimensions
- Product Specifications
- Preparing Cabinet Opening
- Preparing Water and Electrical Connections
- Preparing Dishwasher
- Attaching Installation Brackets
- Sliding Dishwasher into Cabinet Opening
- Connecting Water Supply Line and Power
- Connecting Drain Hose
- Leveling Dishwasher
- Securing Dishwasher to Cabinet Opening
- Final Installation Check
- OPERATION
- SMART FUNCTIONS
- MAINTENANCE
- TROUBLESHOOTING
- LIMITED WARRANTY
- DW_NA0_MFL69261722_16_200902_00_WEB_SP.pdf
- CARACTERÍSTICAS DEL PRODUCTO
- INSTRUCCIONES DE SEGURIDAD
- DESCRIPCIÓN GENERAL DEL PRODUCTO
- INSTALACIÓN
- Piezas y herramientas para la instalación
- Descripción general de la instalación
- Dimensiones del producto
- Especificaciones del producto
- Preparación de la abertura para el gabinete
- Preparación de las conexiones eléctricas y de agua
- Preparación del lavavajillas
- Colocación de los soportes de instalación
- Deslizamiento del lavavajillas en la abertura del gabinete
- Conexión de la línea de suministro de agua y energía eléctrica
- Conexión de la manguera de desagüe
- Nivelado del lavavajillas
- Sujeción del lavavajillas en la abertura del gabinete
- Verificación final de la instalación
- FUNCIONAMIENTO
- FUNCIONES INTELIGENTES
- MANTENIMIENTO
- SOLUCIÓN DE PROBLEMAS
- GARANTÍA LIMITADA
- DW_NA0_MFL69261722_16_200902_00_WEB_FC.pdf
- CARACTÉRISTIQUES DU PRODUIT
- CONSIGNES DE SÉCURITÉ
- APERÇU DU PRODUIT
- INSTALLATION
- Pièces et outils requis pour lʼinstallation
- Aperçu de lʼinstallation
- Dimensions du produit
- Caractéristiques du produit
- Préparer lʼouverture de lʼarmoire
- Préparation des raccords des conduites d’eau et du branchement électrique
- Préparer le lave-vaisselle
- Fixation des supports d’installation
- Positionnement du lave-vaisselle dans l’ouverture de lʼarmoire
- Raccordement de lʼalimentation en eau et branchement électrique
- Raccordement du tuyau de vidange
- Mise de niveau du lave-vaisselle
- Fixation du lave-vaisselle à l’ouverture de lʼarmoire
- Dernière vérification de l’installation
- FONCTIONNEMENT
- FONCTIONS INTELLIGENTES
- ENTRETIEN
- DÉPANNAGE
- GARANTIE LIMITÉE

12 INSTALLATION
Installation Overview
Preparing Cabinet Opening
Preparing Electrical Wiring
Preparing Water Supply Connection
Preparing the Dishwasher
Removing Lower Cover
Sliding the Dishwasher into Cabinet
Leveling the Dishwasher
Securing the Dishwasher to Countertop
Connecting the Drain Hose
Connecting Water Supply
Connecting Power
Final Check
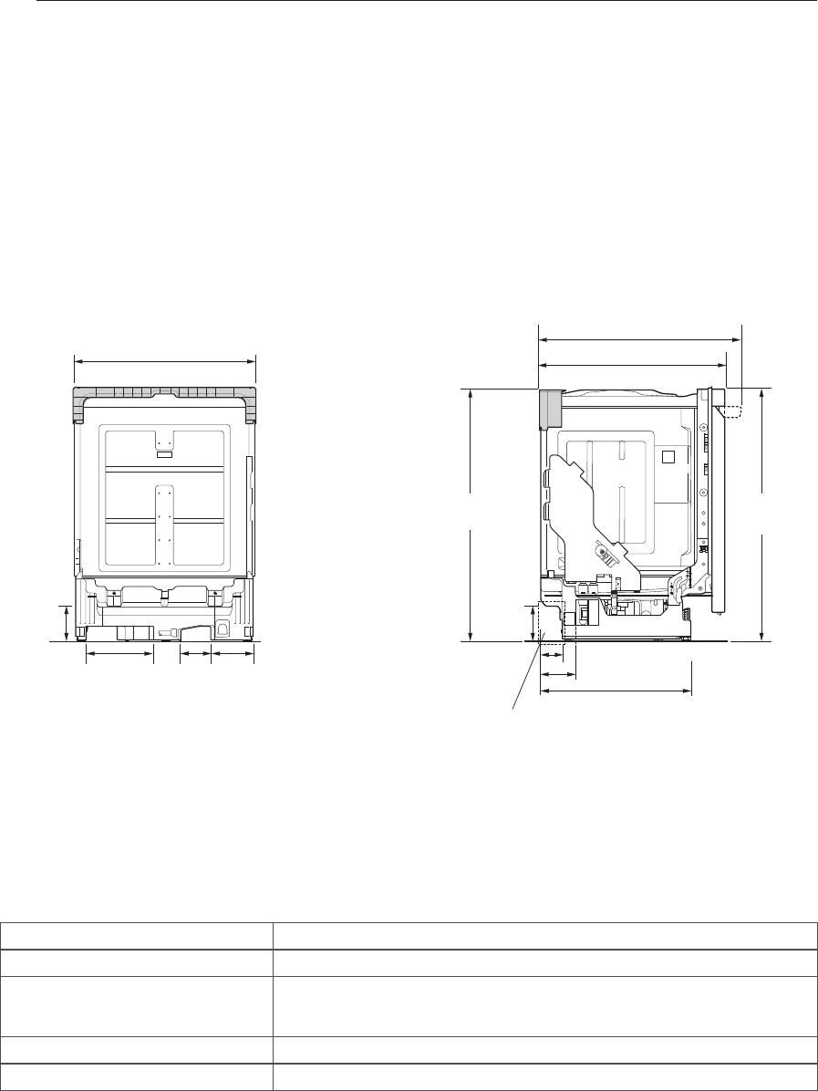
Product Dimensions
Back view Side view
33 /16"
(846 mm)
5
23 /4" (603 mm)
3
4 /2"
(115 mm)
1
33 /8"
(854 mm)
5
2 /16" (75 mm)
15
20 /16" (512 mm)
3
24 /8" (625 mm)
5
4 /4" (120 mm)
3
9 /8"
(238 mm)
3
4 /16"
(119 mm)
5
/4"
(134 mm)
11
1
4 /2"
(115 mm)
1
26 /8 - 26 /16" (676 - 681 mm)
5 13
Water supply hose, drain hose and electric cable should be passed
through this area.
NOTE
• For easiest installation, see marked areas above for water and electrical clearances in base of dishwasher.
Product Specifications
The appearance and specifications listed in this manual may vary due to constant product improvements.
Electrical requirement 120 V, 60 Hz AC only, minimum 15 A circuit breaker
Water pressure 20 - 80 psi (140 - 550 kPa)
Dimensions
23
3
/4"(W) X 24
5
/8"(D) X 33
5
/8"(H)
603 mm(W) X 625 mm(D) X 854 mm(H)
Inlet water temperature 120 °F (49 °C) minimum, 149 °F (65 °C) maximum
Net weight 72 - 89 lbs. (33 - 40 kg)










