Multi F Engineering Manual

MULTI
F
MAX
MULTI
F
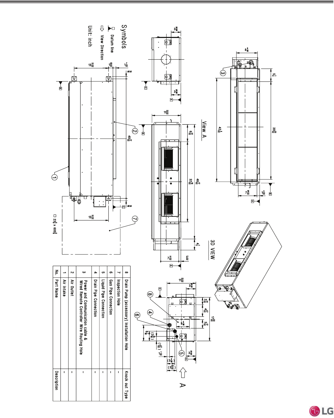
Dimensions
)LJXUH LMHN240HV and LMHN360HV Dimensions.
DUCT (HIGH STATIC) INDOOR UNITS
'XHWRRXUSROLF\RIFRQWLQXRXVSURGXFWLQQRYDWLRQVRPHVSHFL¿FDWLRQVPD\FKDQJHZLWKRXWQRWL¿FDWLRQ
©/*(OHFWURQLFV86$,QF(QJOHZRRG&OLIIV1-$OOULJKWVUHVHUYHG³/*´LVDUHJLVWHUHGWUDGHPDUNRI/*&RUS
98 | DUCT (HIGH STATIC)
Multi F and Multi F MAX Indoor Unit Engineering Manual