Multi F Engineering Manual

Refrigerant Flow Diagram
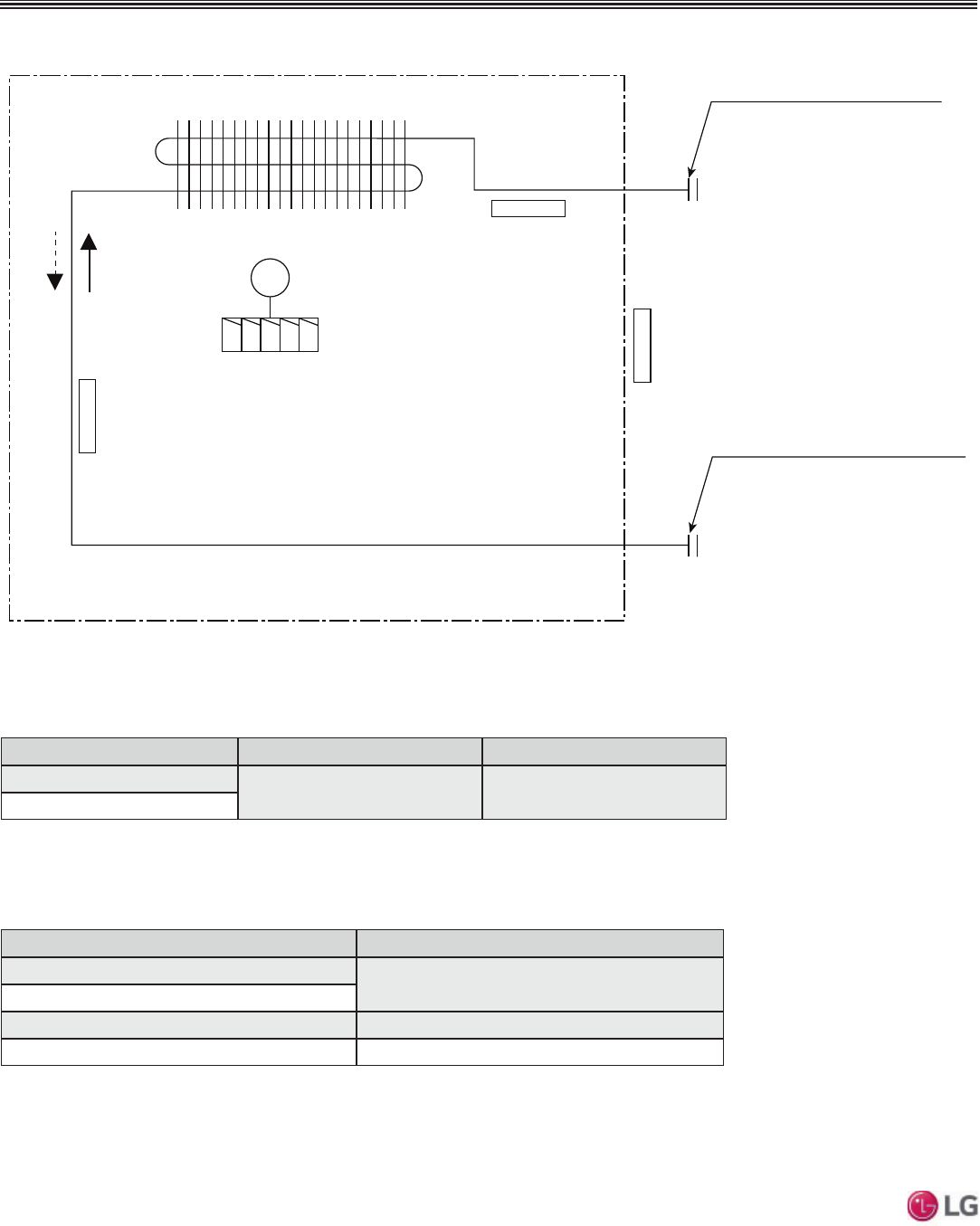
)LJXUH Art Cool Gallery Indoor Unit Refrigerant Flow Diagram.
ART COOL GALLERY INDOOR UNITS
7DEOH Art Cool Gallery Indoor Unit Refrigerant Pipe Connection Port Diameters.
Model No. Vapor (inch) Liquid (inch)
LMAN097HVP
Ø3/8 Ø1/4
LMAN127HVP
7DEOH Art Cool Gallery Indoor Unit Thermistor Details.
Description (Based on Cooling Mode) PCB Connector
Indoor Air Temperature Thermistor
CN-TH1
Evaporator Inlet Temperature Thermistor
Evaporator Outlet Temperature Thermistor CN-TH2
:DWHU/HYHO6HQVRU2SWLRQDO CN-TH3
Gas pipe connection port
(flare connection)
Liquid pipe connection port
(flare connection)
Cooling
Heating
Thermistor for
Evaporator Inlet Temperature
Thermistor for
Indoor Air Temperature
Thermistor for Evaporator
Outlet Temperature
Heat Exchanger
Turbo Fan
M
'XHWRRXUSROLF\RIFRQWLQXRXVSURGXFWLQQRYDWLRQVRPHVSHFL¿FDWLRQVPD\FKDQJHZLWKRXWQRWL¿FDWLRQ
©/*(OHFWURQLFV86$,QF(QJOHZRRG&OLIIV1-$OOULJKWVUHVHUYHG³/*´LVDUHJLVWHUHGWUDGHPDUNRI/*&RUS
36 | ART COOL GALLERY™
Multi F and Multi F MAX Indoor Unit Engineering Manual
MULTI
F
MAX
MULTI
F