Multi F Engineering Manual

Refrigerant Flow Diagram
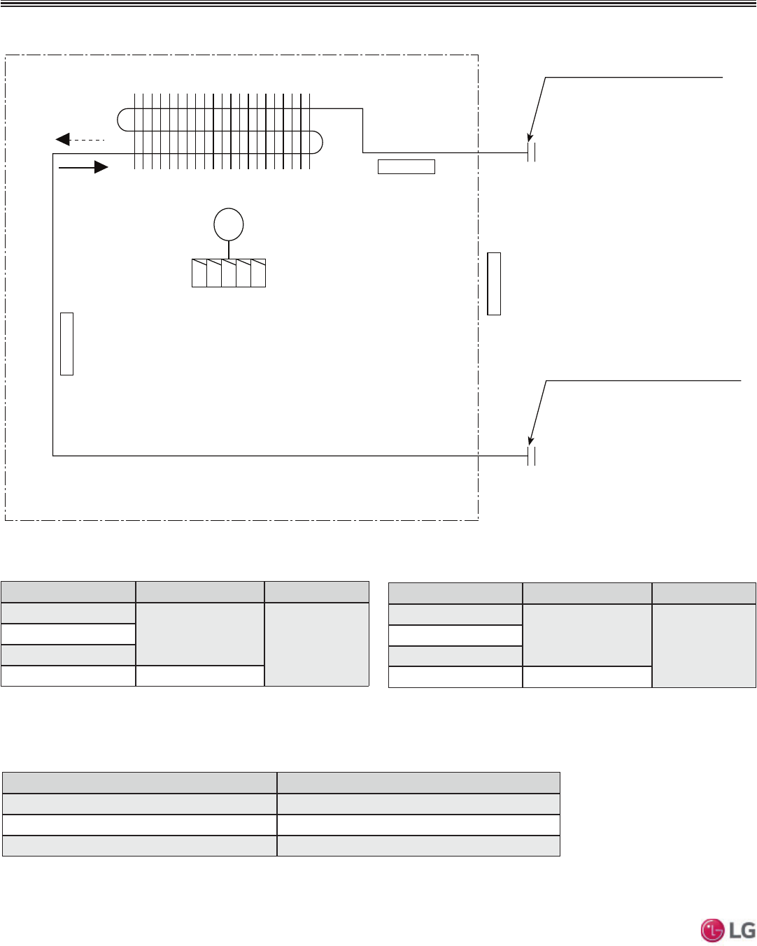
)LJXUH0XOWL))RXU:D\&HLOLQJ&DVVHWWH,QGRRU8QLW5HIULJHUDQW)ORZ'LDJUDP
7DEOH0XOWL))RXU:D\&HLOLQJ&DVVHWWH,QGRRU8QLW5HIULJHUDQW
Pipe Sizes.
Model No. Vapor (inch) Liquid (inch)
LMCN078HV
Ø3/8
Ø1/4
LCN098HV4
LCN128HV4
LCN188HV4 Ø1/2
7DEOH0XOWL))RXU:D\&HLOLQJ&DVVHWWH,QGRRU8QLW5HIULJHUDQW
Pipe Connections.
Description (Based on Cooling Mode) PCB Connector
Indoor Air Temperature Thermistor CN-ROOM
Evaporator Inlet Temperature Thermistor CN-PIPE/IN
Evaporator Outlet Temperature Thermistor CN-PIPE/OUT
FOUR-WAY CEILING-CASSETTE INDOOR UNITS
Heat exchanger
Gas pipe connection port
(flare connection)
Liquid pipe connection port
(flare connection)
Turbo fan
M
Cooling
Heating
Indoor Air
Temperature Thermistor
Evaporator Inlet
Temperature Thermistor
Evaporator Outlet
Temperature Thermistor
7DEOH0XOWL))RXU:D\&HLOLQJ&DVVHWWH,QGRRU8QLW7KHUPLVWRU'HWDLOV
Model No. Vapor (inch) Liquid (inch)
LMCN078HV
Ø3/8
Ø1/4
LCN098HV4
LCN128HV4
LCN188HV4 Ø1/2
'XHWRRXUSROLF\RIFRQWLQXRXVSURGXFWLQQRYDWLRQVRPHVSHFL¿FDWLRQVPD\FKDQJHZLWKRXWQRWL¿FDWLRQ
©/*(OHFWURQLFV86$,QF(QJOHZRRG&OLIIV1-$OOULJKWVUHVHUYHG³/*´LVDUHJLVWHUHGWUDGHPDUNRI/*&RUS
126 | CEILING-CASSETTE
Multi F and Multi F MAX Indoor Unit Engineering Manual
MULTI
F
MAX
MULTI
F