Multi F Engineering Manual

ART COOL MIRROR INDOOR UNITS
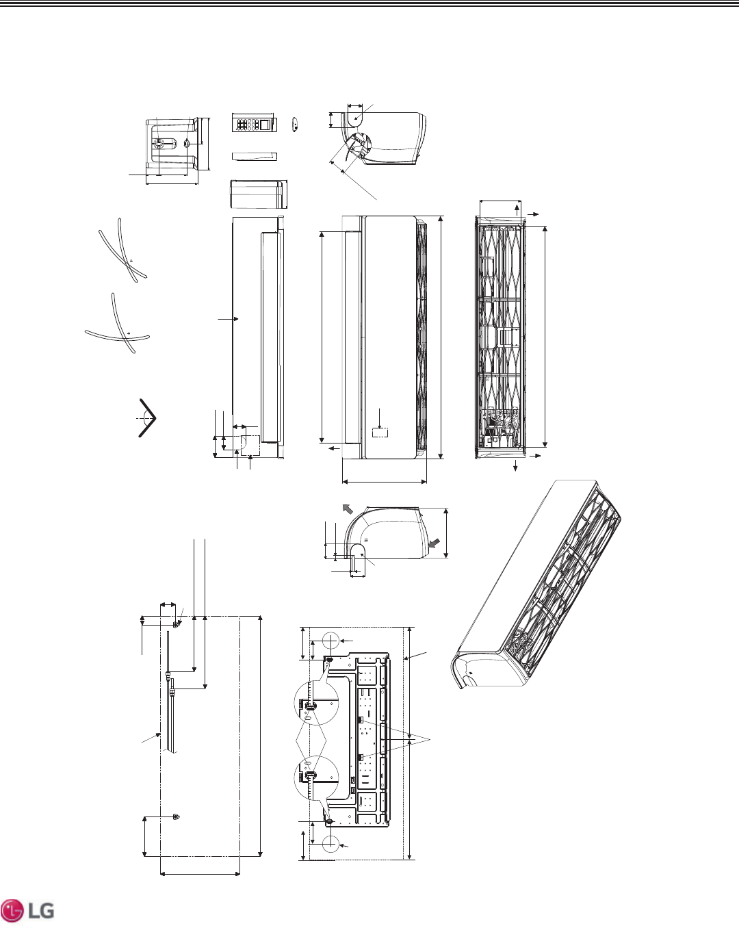
Dimensions
)LJXUH LAN180HSV5 Dimensions.
Unit : inch (mm)
[36-5/32 (918)]
Air Intake Hole
[6-11/16 (170)]
Air Intake Hole
ir Outlet Ho
[2-29/32 (74)]
Rear
Ale
39-9/32 (998)
2-1/4 (57)
2-7/32 (56)
3-17/32 (90)
Bottom
Air
Outlet
[34-11/32 (872)]
Air Outlet Hole
13-19/32 (345)
2-3/8 (60)
7/16(11)
Air Intake
8-11/32 (212)
13-19/32 (345)
39-9/32 (998)
6-15/32 (164)
1-15/32 (37)
2-15/32 (63)
In case of Left Side Piping
Unit Outline
Approx. 9-7/16 (240) to gas pipe
Approx. 6-5/16 (160) to liquid pipe
Connecting Gas/Liquid Pipe
2-3/8 (60)
2-3/8 (60)
Rear
Left
Right
If airflow direction control is available,*
Cooling Heating
Up & Down Left & Right
50°
15°
20°
85°
45°
50°
7/16 (11)
1-3/32 (50.2)
1-1/16 (26.2)
5-31/32 (152)
2-3/8 (60)
Terminal Block for
Power Supply and
Communication
Refrigerant, Drain
Pipe and Cable
Knock Out Hole
Refrigerant, Drain
Pipe, and Cable
Knock Out Hole
Display & Remote
Controller Signal
Receiver Signal
Decoration Cover
Refrigerant,
Drain Pipe
and Cable
Knock
Out Hole
Drain Hose Connection
2-7/16 ( 61.5)
1-9/32 (32.7)
2-13/32
(61)
1/4 (6) x 1/8 (3)
1/8 (3) x 1/4 (6)
5/8 (15.3)
1-1/4 (31)
1-7/16 (33.5)
Attaching the Installation Plate, Drilling Hole
C Type: 19.4 C Type: 19.8
Place a Level on Raised Tab
Unit Outline
3.3
C Type: 5.3
Measuring Tape
Ø2-9/16"
3.3
Measuring Tape
Hanger
Ø2-9/16
"
C Type: 5.9
Right Rear piping
Left Rear piping
ART COOL MIRROR | 13
Art Cool Mirror™
'XHWRRXUSROLF\RIFRQWLQXRXVSURGXFWLQQRYDWLRQVRPHVSHFL¿FDWLRQVPD\FKDQJHZLWKRXWQRWL¿FDWLRQ
©/*(OHFWURQLFV86$,QF(QJOHZRRG&OLIIV1-$OOULJKWVUHVHUYHG³/*´LVDUHJLVWHUHGWUDGHPDUNRI/*&RUS
MULTI
F
MAX
MULTI
F