Multi F Engineering Manual

ART COOL MIRROR INDOOR UNITS
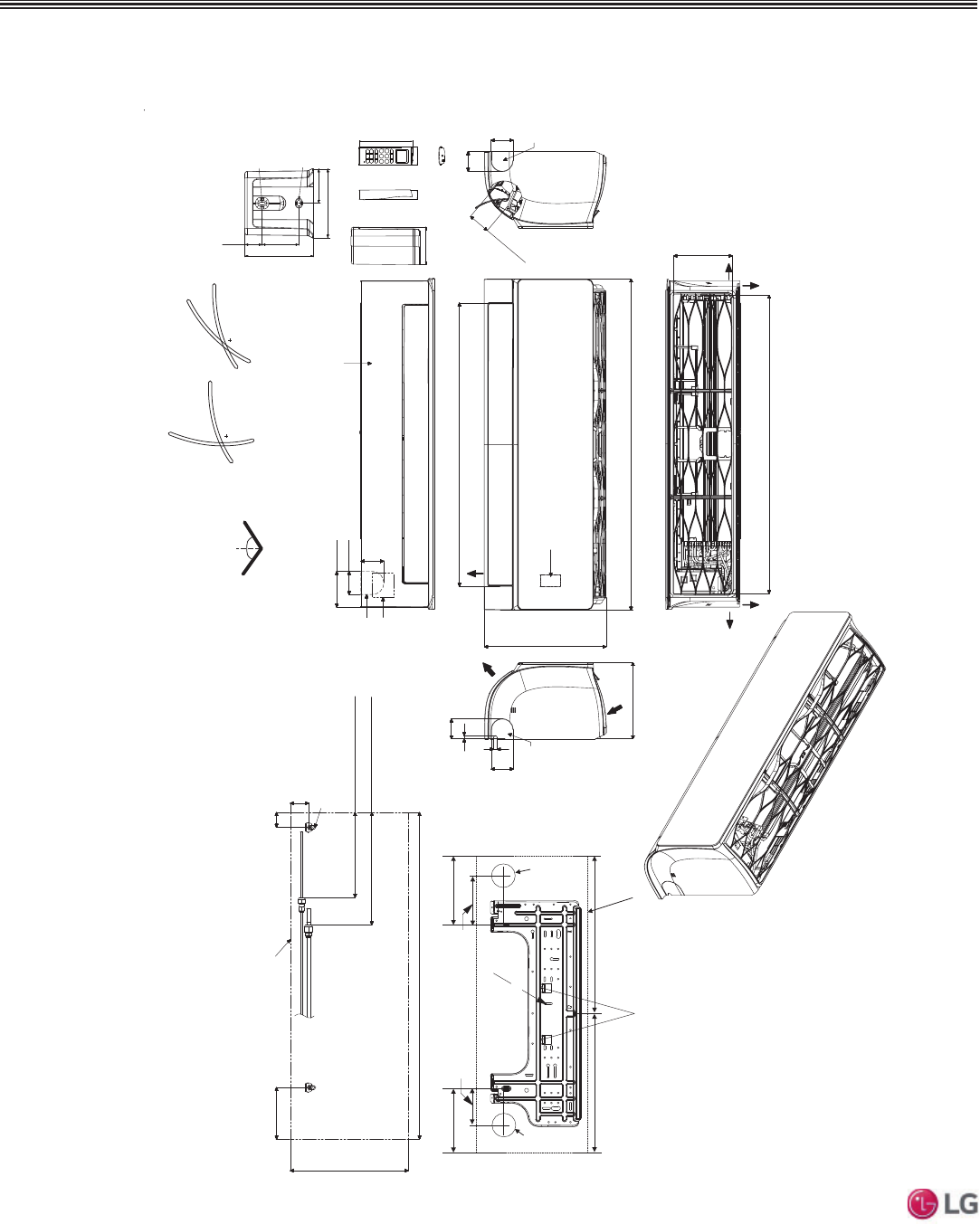
Dimensions
)LJXUH LAN090HSV5 and LAN120HSV5 Dimensions.
Unit : inch (mm)
[30-3/16 (767)]
32-15/16 (837)
3-5/8 (92)
2-3/8 (60)
2-5/16
(59)
12-1/8 (308)
7-9/16 (192)
32-15/16 (837)
1-1/2 (38)
Approx. 8-19/32 (218) to liquid pipe
Approx. 11-11/32 (288) to gas pipe
1-27/32(47)
5-3/16 (132)
In Case of Left Side Piping
Unit Outline
Connecting Gas/Liquid Pipe
12-1/8 (308)
2-7/32(56)
11/32 (9)
5/16 (8)
2 (51)
Air Intake
Air Outlet
Bottom
[28-5/32 (715)]
Air Outlet Hole
* If airflow direction control is available,
Cooling Heating
Up & Down Left & Right
Air Outlet Hole
Air Intake Hole
[5-29/32 (150)]
Air Intake Hole
Rear
Rear
Right
Left
55°
15°
15°
85°
45°
55°
1-3/32 (50.2)
1-1/16 (26.2)
5-31/32 (152)
2-7/32 (56)
2 (51)
2-7/32 (56)
Decoration Cover
Terminal Block for
Power Supply and
Communication
Display & Remote
Controller Signal
Receiver Signal
Refrigerant, Drain
Pipe, and Cable
Knock Out Hole
Drain Hose
Connection
Refrigerant, Drain
Pipe and Cable
Knock Out Hole
Refrigerant,
Drain Pipe
and Cable
Knock
Out Hole
2-7/16 ( 61.5)
1-9/32 (32.7)
2-13/32
(61)
1/4 (6) x 1/8 (3)
1/8 (3) x 1/4 (6)
5/8 (15.3)
1-1/4 (31)
1-7/16 (33.5)
Attaching the Installation Plate, Drilling Hole
7.66
Ø2-9/16”
Ø2-9/16"
Right Rear piping
Left Rear piping
Ø2-9/16"
C Type : 5.3C Type : 3.9
C Type
C Type : 16.5 C Type : 16.5
Place a Level on Raised Tab
Unit Outline
Installation Plate
'XHWRRXUSROLF\RIFRQWLQXRXVSURGXFWLQQRYDWLRQVRPHVSHFL¿FDWLRQVPD\FKDQJHZLWKRXWQRWL¿FDWLRQ
©/*(OHFWURQLFV86$,QF(QJOHZRRG&OLIIV1-$OOULJKWVUHVHUYHG³/*´LVDUHJLVWHUHGWUDGHPDUNRI/*&RUS
12 | ART COOL MIRROR
Multi F and Multi F MAX Indoor Unit Engineering Manual
MULTI
F
MAX
MULTI
F