Multi F Engineering Manual

ART COOL GALLERY INDOOR UNITS
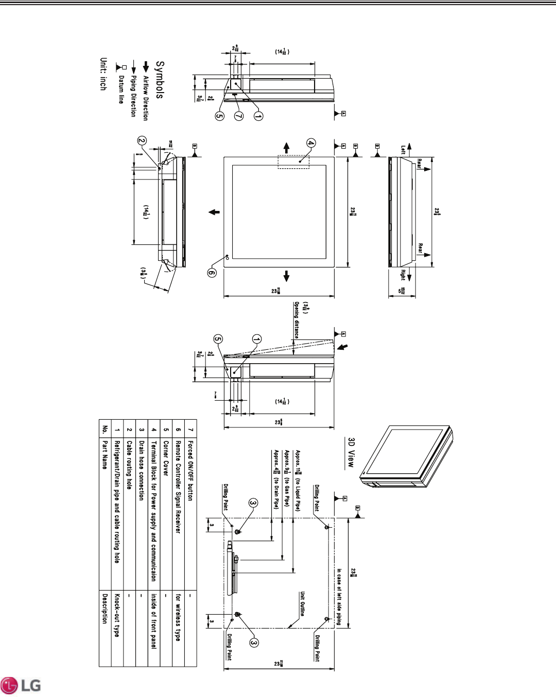
Dimensions
)LJXUH LMAN097HVP and LMAN127HVP Dimensions.
Supply Air Vane
Return Air Inlet
Supply Air Vane
Supply Air
Supply
Air
Supply
Air
Discharge Air Grille
Supply Air Vane
ART COOL GALLERY™ | 31
Art Cool Gallery™
'XHWRRXUSROLF\RIFRQWLQXRXVSURGXFWLQQRYDWLRQVRPHVSHFL¿FDWLRQVPD\FKDQJHZLWKRXWQRWL¿FDWLRQ
©/*(OHFWURQLFV86$,QF(QJOHZRRG&OLIIV1-$OOULJKWVUHVHUYHG³/*´LVDUHJLVWHUHGWUDGHPDUNRI/*&RUS
MULTI
F
MAX
MULTI
F