Multi F Engineering Manual

Supply Air Vane
Supply Air Vane
Supply Air Vane
Return Air Grille
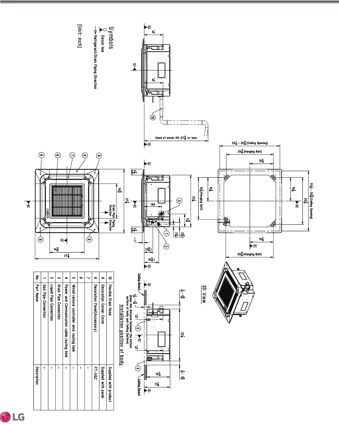
Dimensions
FOUR-WAY CEILING-CASSETTE INDOOR UNITS
)LJXUHLCN188HV4 Dimensions.
CEILING-CASSETTE | 117
Four-Way Ceiling-Cassette
'XHWRRXUSROLF\RIFRQWLQXRXVSURGXFWLQQRYDWLRQVRPHVSHFL¿FDWLRQVPD\FKDQJHZLWKRXWQRWL¿FDWLRQ
©/*(OHFWURQLFV86$,QF(QJOHZRRG&OLIIV1-$OOULJKWVUHVHUYHG³/*´LVDUHJLVWHUHGWUDGHPDUNRI/*&RUS
MULTI
F
MAX
MULTI
F