Multi F Engineering Manual

ART COOL GALLERY INDOOR UNITS
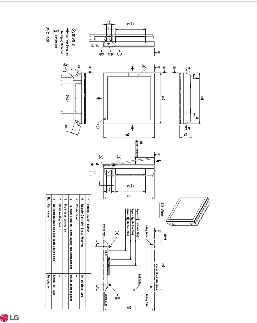
Dimensions
)LJXUH LMAN097HVP and LMAN127HVP Dimensions.
Supply Air Vane
Return Air Inlet
Supply Air Vane
Supply Air
Supply
Air
Supply
Air
Discharge Air Grille
Supply Air Vane
ART COOL GALLERY™ | 31
Art Cool Gallery™
'XHWRRXUSROLF\RIFRQWLQXRXVSURGXFWLQQRYDWLRQVRPHVSHFL¿FDWLRQVPD\FKDQJHZLWKRXWQRWL¿FDWLRQ
©/*(OHFWURQLFV86$,QF(QJOHZRRG&OLIIV1-$OOULJKWVUHVHUYHG³/*´LVDUHJLVWHUHGWUDGHPDUNRI/*&RUS
MULTI
F
MAX
MULTI
F