Multi F Engineering Manual

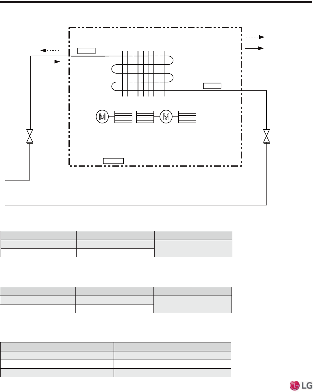
)LJXUHLDN127HV4 and LDN187HV4 Refrigerant Flow Diagram.
DUCT (LOW STATIC) INDOOR UNITS
Refrigerant Flow Diagrams
7DEOH Multi F Ceiling-Concealed Duct (Low Static) LDN127HV4 and LDN187HV4 Indoor Unit Refrigerant
Pipe Sizes.
Model No. Vapor (inch) Liquid (inch)
LDN127HV4 Ø3/8
Ø1/4
LDN187HV4 Ø1/2
7DEOH Multi F Ceiling-Concealed Duct (Low Static) LDN127HV4 and LDN187HV4 Indoor Unit Refrigerant
Pipe Connections.
Description (Based on Cooling Mode) PCB Connector
Indoor Air Temperature Thermistor CN-ROOM
Evaporator Inlet Temperature Thermistor CN-PIPE/IN
Evaporator Outlet Temperature Thermistor CN-PIPE/OUT
Indoor Unit
: Cooling
: Heating
MM
Sirocco Fan
Indoor Air
Temperature
Thermistor
Evaporator
Outlet
Temperature
Thermistor
Evaporator
Inlet
Temperature
Thermistor
Model No. Vapor (inch) Liquid (inch)
LDN127HV4 Ø3/8
Ø1/4
LDN187HV4 Ø1/2
7DEOH Multi F Ceiling-Concealed Duct (Low Static) LDN127HV4 and LDN187HV4 Indoor Unit Thermistor
Details.
'XHWRRXUSROLF\RIFRQWLQXRXVSURGXFWLQQRYDWLRQVRPHVSHFL¿FDWLRQVPD\FKDQJHZLWKRXWQRWL¿FDWLRQ
©/*(OHFWURQLFV86$,QF(QJOHZRRG&OLIIV1-$OOULJKWVUHVHUYHG³/*´LVDUHJLVWHUHGWUDGHPDUNRI/*&RUS
82 | DUCT (LOW STATIC)
Multi F and Multi F MAX Indoor Unit Engineering Manual
MULTI
F
MAX
MULTI
F










