Multi F Engineering Manual

Dimensions
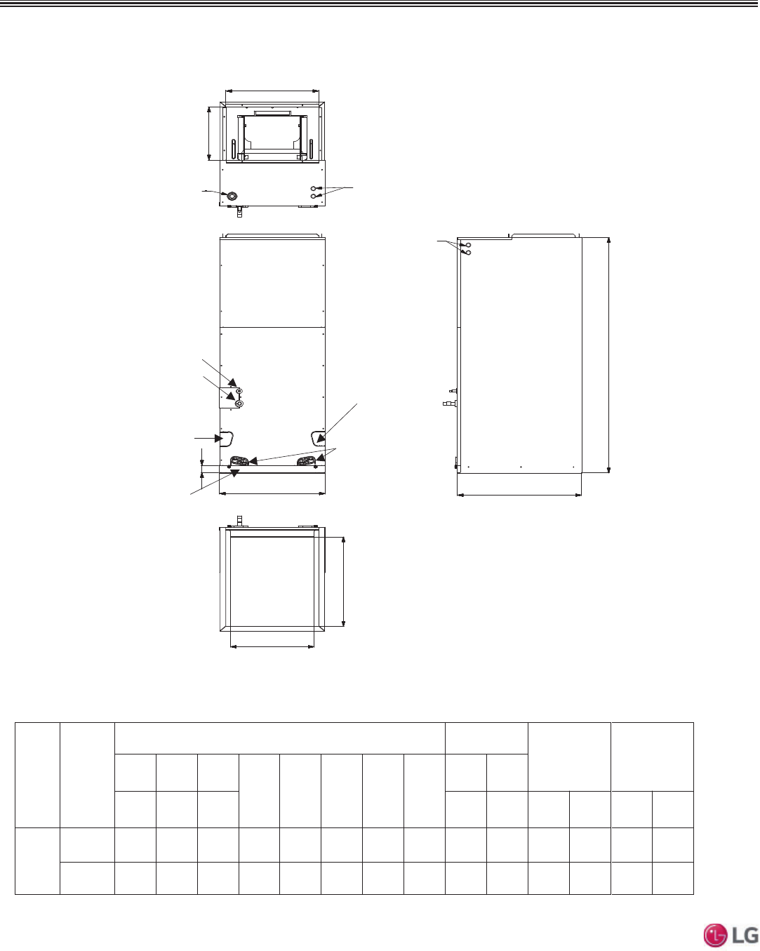
FOUR-WAY VAHU INDOOR UNITS
)LJXUH Four-way Vertical Air Handling Unit Dimensions.
Top
Front
Bottom
Side-right
Refrigerant
connections
Drain connections
for horizontal left
application
Drain
connections
for upflow
application
Air filter cover
Unit: inch
ODU
Capacity
(kBtu/h)
Dimensions
Wiring
Knock out
Refrigerant
Pipe size
ABC
DEFGH
IJ
Height Width Depth
Power
Comm-
unication
Liquid Gas
Multi
Zone
18
24
48-5/8 18 21-3/8 1-9/16 17-1/2 20 17 12-1/8 1-11/16 7/8 1/4 1/2
36
55-1/8 25 21-3/8 1-9/16 24-1/2 20 24 12-1/8 1-11/16 7/8 3/8 5/8
G
J
C
J
B
I
E
F
D
A
H
Drain connections
for horizontal right
application
Refrigerant
Connections
Pipe
Liquid Gas
3/8 5/8
3/8 5/8
'XHWRRXUSROLF\RIFRQWLQXRXVSURGXFWLQQRYDWLRQVRPHVSHFL¿FDWLRQVPD\FKDQJHZLWKRXWQRWL¿FDWLRQ
©/*(OHFWURQLFV86$,QF(QJOHZRRG&OLIIV1-$OOULJKWVUHVHUYHG³/*´LVDUHJLVWHUHGWUDGHPDUNRI/*&RUS
160 | VERTICAL-HORIZONTAL
Multi F and Multi F MAX Indoor Unit Engineering Manual
MULTI
F
MAX
MULTI
F










