Multi F Engineering Manual

FOUR-WAY CEILING CASSETTE INDOOR UNITS
Installation and Best Layout Practices
Selecting the Best Location
Do’s
Place the unit where air circulation will not be blocked.
Place the unit where drainage can be obtained easily.
Place the unit where noise prevention is taken into consideration.
(QVXUHWKHUHLVVXI¿FLHQWVWUHQJWKWREHDUWKHORDGRIWKHLQGRRUXQLW
Ensure there is sufficient maintenance space.
Locate the indoor unit in a location that is level, and where it can
be easily connected to the outdoor unit / branch distribution unit.
Ceiling
Ceiling Tile
Ceiling Tile
Floor
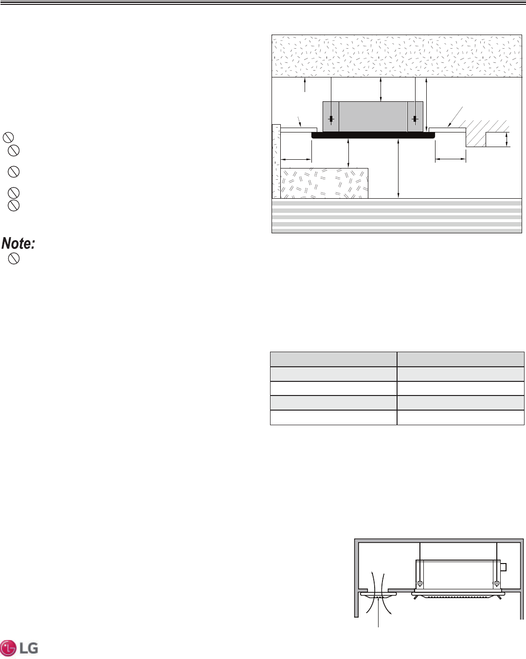
≥13/32
≥11-13/16 inches
H = 6 feet to 12 feet
≥39-3/8 inches
≥19-11/16
≥19-11/16
≤11-13/16 inches
inches
inches
inches
)LJXUHIndoor Unit Clearance Requirements.
Installing in a High or Dropped Ceiling
High or dropped ceilings, often found in commercial buildings and
offices, will cause a wide temperature differentiation. To counter-
PHDVXUH
Change the indoor unit mode selection to allow for higher ceilings
(see table).
Install an air circulator.
Set the air discharge outlet so that heated air flows in a downward
direction.
Use a dual door system to protect the building gate or exit.
Installing in an Area Exposed to Unconditioned Air
In some installation applications, areas (floors, walls) in some rooms will be exposed to unconditioned air (room will be above or next to an
XQKHDWHGJDUDJHRUVWRUHURRP7RFRXQWHUPHDVXUH
Verify that carpet is or will be installed (carpet will increase the temperature by three (3) degrees).
Add insulation between the floor joists.
Install radiant heat or another type of heating system to the floor.
Ceiling Height Mode Selection
IHHW Low Ceiling
7-1/2 feet to 8-7/8 feet Standard
8-7/8 feet to 10-3/16 feet High Ceiling
10-3/16 feet to 11-13/16 feet Very High Ceiling
7DEOHIndoor Unit High Ceiling Mode Selection Options.
Installing in an Area with High Humidity Levels
If the environment is prone to humidity levels of 80% or more (near the ocean, lakes, etc.) or
ZKHUHVWHDPFRXOGFROOHFWLQWKHSOHQXP
Install additional insulation to the indoor unit (glass wool insulation >13/32 inches thick).
Install additional insulation to the refrigerant piping (insulation >13/16 inches thick).
Seal all gaps between the indoor unit and the ceiling tiles (make the area air tight) so that
humidity does not transfer from the plenum to the conditioned space. Also, add a ceiling
grille for ventilation.
Ventilation Grille
)LJXUHInstalling in a Highly Humid Location.
Don’ts
Do not install the unit near a heat or steam source, or where
considerable amounts of oil, iron powder, or flour are used.
Do not install the unit where sulfuric acid and flammable or cor
rosive gases are generated, vented into, or stored.
'RQRWLQVWDOOWKHXQLWQHDUKLJKIUHTXHQF\JHQHUDWRUV
Do not install the unit near a doorway.
The unit will be damaged, will malfunction, and/or will not
operate as designed if installed in any of the conditions listed.
,QGRRUXQLWV,'8VPXVWQRWEHSODFHGLQDQHQYLURQPHQWZKHUHWKH,'8VZLOOEHH[SRVHGWRKDUPIXOYRODWLOHRUJDQLFFRPSRXQGV92&V
RULQHQYLURQPHQWVZKHUHWKHUHLVLPSURSHUDLUPDNHXSRUVXSSO\RULQDGHTXDWHYHQWLODWLRQ,IWKHUHDUHFRQFHUQVDERXW92&VLQWKHHQYL
URQPHQWZKHUHWKH,'8VDUHLQVWDOOHGSURSHUDLUPDNHXSRUVXSSO\DQGRUDGHTXDWHYHQWLODWLRQPXVWEHSURYLGHG$GGLWLRQDOO\LQEXLOGLQJV
ZKHUH,'8VZLOOEHH[SRVHGWR92&VFRQVLGHUDWKLUGSDUW\IDFWRU\DSSOLHGHSR[\FRDWLQJWRWKHIDQFRLOVIRUHDFK,'8ZKHUHWKHHQWLUHFRLO
is dipped, not sprayed.
,IWKHXQLWLVLQVWDOOHGQHDUDERG\RIZDWHUWKHLQVWDOODWLRQSDUWVDUHDWULVNRIFRUURGLQJ$SSURSULDWHDQWLFRUURVLRQPHWKRGVPXVWEHWDNHQ
for the unit and all installation parts.
CEILING-CASSETTE | 129
Four-Way Ceiling-Cassette
'XHWRRXUSROLF\RIFRQWLQXRXVSURGXFWLQQRYDWLRQVRPHVSHFL¿FDWLRQVPD\FKDQJHZLWKRXWQRWL¿FDWLRQ
©/*(OHFWURQLFV86$,QF(QJOHZRRG&OLIIV1-$OOULJKWVUHVHUYHG³/*´LVDUHJLVWHUHGWUDGHPDUNRI/*&RUS
MULTI
F
MAX
MULTI
F