Multi F Engineering Manual

Dimensions
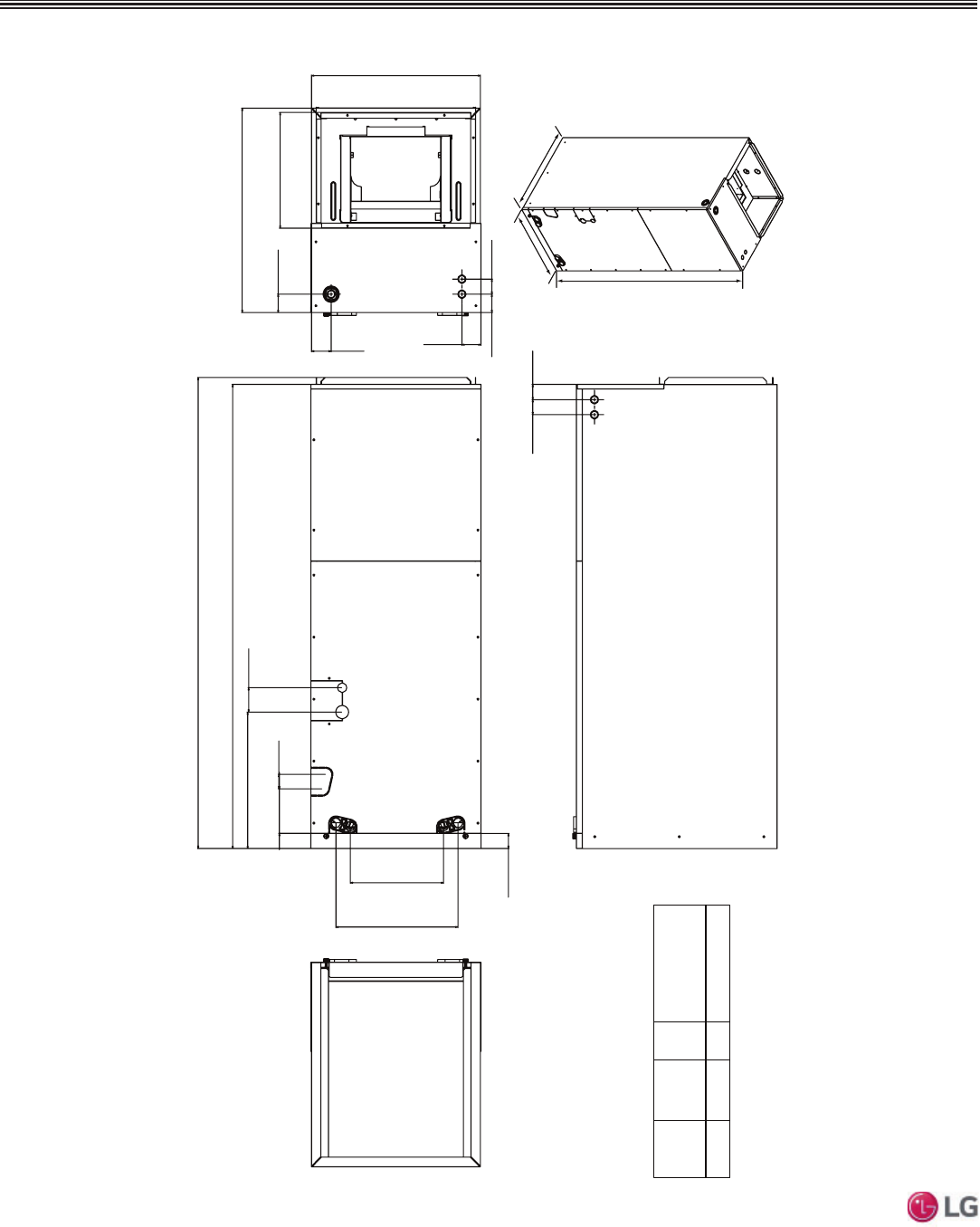
TWO-WAY VAHU INDOOR UNITS
)LJXUH LMVN240HV and LMVN360HV Dimensions.
WModel
LMVN240HV
LMVN360HV
18
48-21/32 21-1/4
H
Unit: Inch
H
W
D
48-21/32
49-5/16
2-9/16
1-15/16
21-1/4
12-1/8
1-1/2
9-15/16
2-1/16
18
17
2-1/8
13
4-11/16
1-9/16
1-9/16
1-9/16 1-15/16
1-5/8
14-5/16
D
'XHWRRXUSROLF\RIFRQWLQXRXVSURGXFWLQQRYDWLRQVRPHVSHFL¿FDWLRQVPD\FKDQJHZLWKRXWQRWL¿FDWLRQ
©/*(OHFWURQLFV86$,QF(QJOHZRRG&OLIIV1-$OOULJKWVUHVHUYHG³/*´LVDUHJLVWHUHGWUDGHPDUNRI/*&RUS
140 | VERTICAL-HORIZONTAL
Multi F and Multi F MAX Indoor Unit Engineering Manual
MULTI
F
MAX
MULTI
F