Multi F Engineering Manual

PLACEMENT CONSIDERATIONS
M10
Anchor Bolt
2-3/4~4 23/32
13/16
Unit: Inch
Bolt
Refrigerant Pipe
Connection Location
Top of Outdoor Unit
(Looking Down)
Bolt
Bolt
Bolt
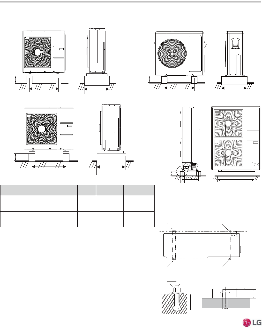
Bolting the Outdoor Unit to the Platform
1. Ensure that the concrete platform will not degrade easily, and has enough
strength to bear the weight of the unit.
2. Include an H-beam support. Firmly attach the corners, otherwise the support will
bend.
3. Use a hexagon nut.
4. Use anti-vibration material.
5. Include enough space around the concrete foundation for condensate drainage.
6. Seal all wiring and piping access holes to prevent bugs from entering the unit.
)LJXUH Outdoor Unit Foundation Requirements.
Concrete Platform Specifications
• Concrete foundations must be made of one part cement, two parts sand, and four
parts gravel.
• The surface of the foundation must be finished with mortar with rounded edges,
and weatherproofed.
)LJXUH Bolting the Outdoor Unit to the Platform.
7DEOH2XWGRRU8QLW)RXQGDWLRQ6SHFL¿FDWLRQV
Outdoor Unit Platform Requirements
Minimum
3-15/16
21-1/2
Minimum 14-9/16
Unit: Inch
LMU18CHV and LMU24CHV Outdoor Units
)LJXUH Close up of Bolt Attachment.
Outdoor Unit Type Bolt Type
Concrete
Height
Bolt Depth
LMU180HHV, LMU240HHV, LMU300HHV,
LMU18CHV, LMU24CHV, LMU30CHV,
LMU36CHV
M10-J
Minimum Four
(4) Inches
Minimum Three
(3) Inches
LMU360HHV, LMU420HHV, LMU480HV,
LMU540HV,LMU600HV
M10-J
Minimum Eight
(8) Inches
Minimum Three
(3) Inches
LMU360HHV, LMU420HHV, LMU480HV, LMU540HV, LMU600HV
Outdoor Units
Minimum
3
-15/16)
21-1/2
Minimum 14-9/16
Unit: Inch
LMU30CHV and LMU36CHV Outdoor Units
Minimum
8
7-7/8
15-3/4
Minimum 24-13/32
Unit: Inch
Minimum 4
24-13/32
Minimum 16
Unit: Inch
LMU180HHV, LMU240HHV, and LMU300HHV Outdoor Units
'XHWRRXUSROLF\RIFRQWLQXRXVSURGXFWLQQRYDWLRQVRPHVSHFL¿FDWLRQVPD\FKDQJHZLWKRXWQRWL¿FDWLRQ
©/*(OHFWURQLFV86$,QF(QJOHZRRG&OLIIV1-$OOULJKWVUHVHUYHG³/*´LVDUHJLVWHUHGWUDGHPDUNRI/*&RUS
194 | APPLICATION GUIDELINES
Multi F and Multi F MAX Indoor Unit Engineering Manual
MULTI
F
MAX
MULTI
F










