User Guide

8
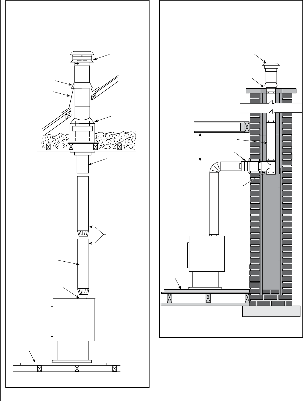
NOTE: DIAGRAMS & ILLUSTRATIONS ARE NOT TO SCALE.
Shown with Tubinox™ Stainless
Steel Liner components (see Page
29 for ordering information)
Chimney
Termination
Cap
Chimney
Termination
Rain Cap
Masonry
Adaptor
Length
90° Tee
Storm
Collar
Roof
Flashing
Flashing
Ceiling Support
Assembly
Slip
Adaptor
Chimney
Connector
6” x 24” 24-gage
black steel or 26
gage blued steel
single wall pipe
Single Wall Pipe
Using 6” Diameter Single Wall Connector Pipe
STAINLESS STEEL LINER
Using 6” Diameter Rigid Stainless Steel Liner
Figure 5 - Typical Installation
Figure 6 - Connected to a Masonry Chimney
Floor
Protector
Floor
Protector
Fasten each stove pipe
connection with at least
3 sheet metal screws.
Single wall stove pipe
must not pass through
attics, closets, walls or
ceilings. It is used to
connect this appliance
to a factory built or
masonry chimney.
INSTALL VENTING SYSTEM PER VENT MANUFACTURERS
INSTRUCTIONS!
INSTALL VENTING SYSTEM PER VENT MANUFACTURERS
INSTRUCTIONS!
Fasten stove pipe to
flue collar with 3 sheet
metal screws.
18” (457mm)
Minimum
YOUR CHIMNEY INSTALLATION MUST COMPLY WITH LOCAL
BUILDING AND FIRE CODES.
Stove
Side View
Stove
Side View










