User Guide

NOTE: DIAGRAMS & ILLUSTRATIONS ARE NOT TO SCALE
26
Flue Size 3” (76 mm) Rear
Floor Protection Front and Sides: 6”(152 mm)
Requirements Back: Up to 6”(152 mm)
u
Hopper Capacity 55 Lbs.
v
Burn time 15 - 37 hours
v
Fuse, Control Board 5 Amp, 250 volt, 3AG
w
Fuse, Igniter 6 Amp, 125 volt
w
Heat Input 13,000 - 32,000 BTU/hr
v
(BTU’s per hour)
Emissions < 4.5 gr/hr (varies w/size and
type of fuel) EPA Certified
v
Convection (room air)
Blower 150 CFM; 1.5 Amps,
2175 rpm
Combustion Blower 95 CFM: 1.0 Amps,
3000 rpm
Auger Motor 1.25 RPM; 0.5 Amps
Standard Features Fastfire™ Self Igniter
Wall Thermostat
(wire included)
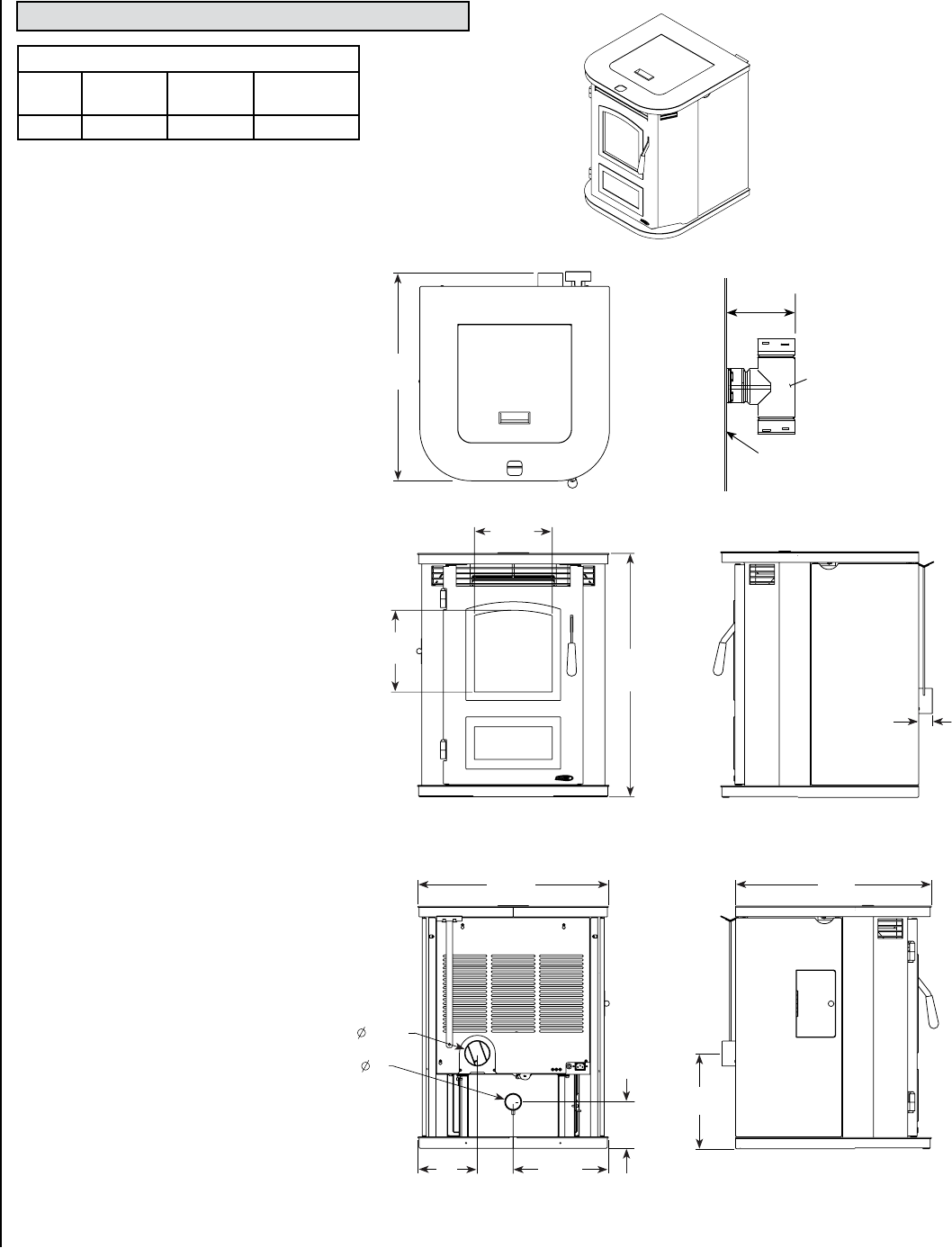
SPECIFICATIONS - Montage™ 32FS
Notes:
• Dimensions shown are approximations only
.25(+/- 1/4”)
• Approved for Manufactured Home Installations.
• Optional Kits Available - Decorative trim kits, log
set, window screen and 4” Quick Disconnect
kits.
• The burn grate is designed with advanced
UltraGrate™ technology.
u
Non-combustible floor protection is required
(see Floor Protection, Page 4). When installed
at clearances less than 6”, the floor protector is
only required to extend to the wall.
v
Fuel delivery and burn times will vary depending
on size and type of fuel used. Estimated heat input
based on fuel value of 8400 BTU per lb.
w
Fuses are rated as fast blow.
Product Reference Information
Cat. No.
Model Ship.
Weight
Ship.
Volume
H6839 Montage 32FS 285 lb. 22.06 cu. ft.
9-5/8”
245mm
28-11/16”
729mm
9-3/16”
233mm
24-11/16”
627mm
1-9/16”
40mm
11-1/4”
286mm
23-1/8”
507mm
2-15/16”
75mm
5-1/2”
140mm
11-1/4”
286mm
7”
178mm
22-1/2”
572mm
2”
51mm
Stove Back
Clean-Out
Tee
5-7/8"










