User Guide

Gasket Part # Dimensions Qty
Around
the door
PR-SR1823N 58-3/4”
5/8” dia.
2
Table 1
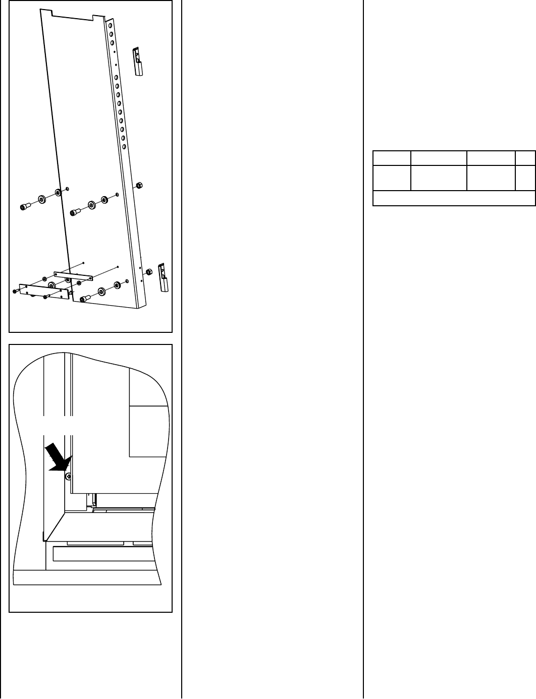
Figure 10
Figure 11
Unscrew the
nuts to change
the bearings
Door Angle (hang)
Adjustment Screw
NOTE: DIAGRAMS & ILLUSTRATIONS ARE NOT TO SCALE.
8
GLASS CARE
Glass Replacement
The glass used for the Cambria™ fireplace is
a high temperature ceramic glass (1400°F). If
the glass breaks or cracks, it must be replaced
with an identical ceramic glass. Tempered
glass or ordinary glass will not withstand the
high temperatures of the Cambria fireplace.
Replacement glass should be purchased from
a Lennox Hearth Products dealer (see “Replace-
ment Parts” on Page 25).
Do not operate the unit with cracked or broken
glass.
Glass Cleaning
The Cambria fireplace is designed to keep the
glass clean under normal operating condi-
tions. If the Cambria fireplace is operated
continuously with the combustion air controls
closed, the glass will tend to get dirty unless
the fuel, firebox and glass are maintained at
hot temperatures. To clean the glass, there
are a number of specially designed cleaners
to remove creosote. Your authorized Lennox
Hearth Products dealer can recommend a suit-
able cleaner. Regular household glass cleaners
will not clean creosote. Do not use abrasives
such as steel pads, steel wool or oven cleaner
as they will scratch the glass.
DO NOT USE CHEMICAL GLASS CLEANERS
ON PAINTED SURFACES AS IT MAY CAUSE
THE PAINT TO PEEL.
CAUTION : DO NOT ALLOW WINDOW CLEANER
TO GET IN CONTACT WITH DOOR GASKET OR
PAINT ON FACADE OR DOOR. ONCE CLOSED,
CONTACT OF GLASS CLEANER WITH THE
FIREPLACE FACADE CAN PROVOKE PAINT
PEELING OFF.
Andirons
The Cambria fireplace is equipped with and-
irons designed to keep logs from falling into
the door. It must be replaced only by Lennox
Hearth Products andirons available from your
dealer. No other andirons, log retainer or log
support is sold or recommended by Lennox
Hearth Products.
Gasket Replacement
Remove the doors from the unit (see Door
Installation on Page 6) and lay them on a clean
nonabrasive surface. To replace the gasket, first
remove all of the old gasket and gasket cement.
Make sure that the surface is totally clean before
applying new cement (a high temperature sili-
cone caulking rated at 500°F / 260°C, is suitable)
or adhesion problems may result. Apply gasket
cement to the gasket channel and install the
new gasket. This replacement part is available
from your Lennox Hearth Products dealer in the
dimensions shown in Table 1.










