Indoor Fireplace User Manual

NOTE: DIAGRAMS & ILLUSTRATIONS ARE NOT TO SCALE.
17
WIRING DIAGRAMS
Wiring diagrams are provided here for reference
purposes only. This information is also provided
on schematics attached directly to the appliance
on a pullout panel located within the control
compartment.
CAUTION: LABEL ALL WIRES
PRIOR TO DISCONNECTION WHEN
SERVICING CONTROLS. WIRING
ERRORS CAN CAUSE IMPROPER
AND DANGEROUS APPLIANCE
OPERATION.
ATTENTION : AU MOMENT DE
L'ENTRETIEN DES COMMANDES,
ÉTIQUETEZ TOUS LES FILS AVANT
DE LES DÉBRANCHER. DES
ERREURS DE CÁBLAGE PEU-VENT
ENTRAÎNER UN FONCTIONNEMENT
INADÉQUAT ET DANGEREUX.
WARRANTY
Your gas appliance is covered by a limited twenty
year warranty. You will find a copy of the war-
ranty accompanying this manual. Please read
the warranty to be familiar with its coverage.
Retain this manual. File it with your other docu-
ments for future reference.
REPLACEMENT PARTS
A complete parts list is found at the end of
this manual. Use only parts supplied from the
manufacturer.
With proper care and maintenance, your appli-
ance will provide many years of enjoyment. If
you should experience any problem, first refer
to the troubleshooting guide in this manual. If
problem persists, contact your Lennox Hearth
Products dealer or distributor.
Normally, all parts should be ordered through
your Lennox Hearth Products distributor or
dealer. Parts will be shipped at prevailing prices
at time of order.
When ordering repair parts, always give the
following information:
1. The model number of the appliance.
2. The serial number of the appliance.
3. The part number.
4. The description of the part.
5. The quantity required.
6. The installation date of the appliance.
If you encounter any problems or have any
questions concerning the installation or ap-
plication of this system, please contact your
dealer or distributor.
LENNOX HEARTH PRODUCTS
1508 Elm Hill Pike, Suite 108
Nashville, TN 37210
visit us at www.Lennox.com
1-800-9-LENNOX
PRODUCT REFERENCE INFORMATION
We recommend that you record the following
important information about your fireplace.
Please call Lennox Hearth Products for the
phone number of your nearest Lennox Hearth
Products dealer who will answer your questions
or address your concerns.
Your Fireplace's Model Number ___________________________________________
Your Fireplace's Serial Number ___________________________________________
The Date On Which Your Fireplace Was Installed ______________________________
The Type of Gas Your Fireplace Uses _______________________________________
Your Dealer's Name ___________________________________________________
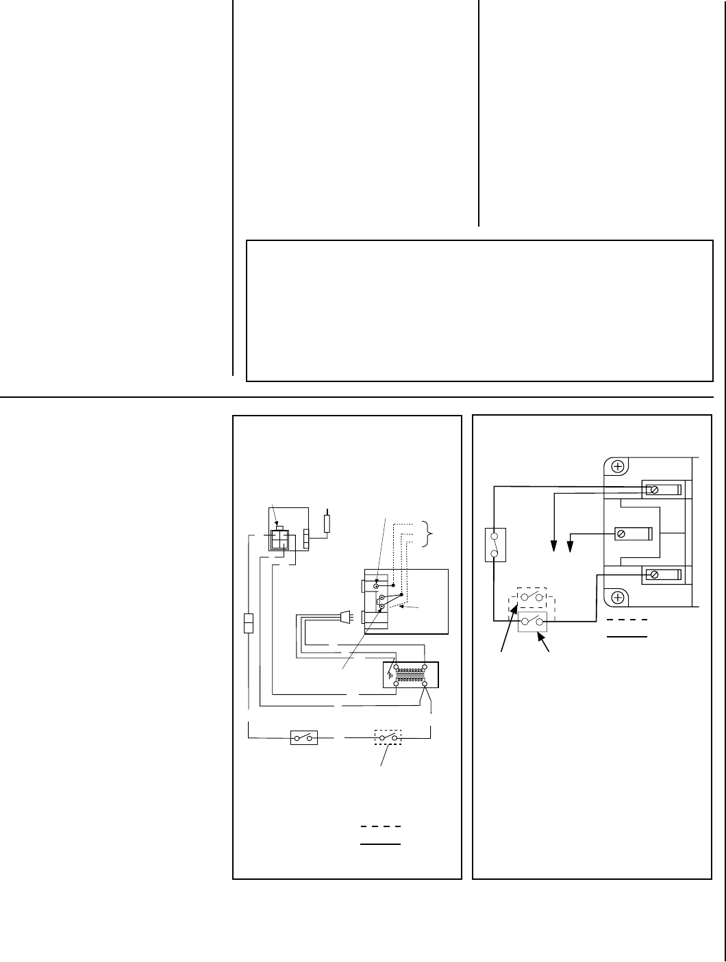
Figure 20
If any of the original wire as supplied must
be replaced, it must be replaced with Type
AWM105 C - 18 gage wire.
* Optional Control Switches - OFF/ON wall switch
or remote control receiver.
Note: Turn the appliance-mounted OFF/ON burner
control switch to the OFF position if an optional
control switch is installed.
Millivolt Wiring Diagram
Thermopile
TH
TP
TH
TP
White
White
Black
Spill Switch
Schematic
Representation Only
Field Wired
Factory
Wired
* Optional
Control Switch
Appliance mounted
OFF / ON Switch
1. If any of the original wire as supplied must be replaced,
1. it must be replaced with Type AWM 105°C – 18 GA.
wire.
2. 120V, 60Hz – Less than 3 amps.
BK
Junction Box
Transf.
120 V.
24 V
Factory Wired Field Wired
BL
Electronic Wiring Diagram (Honeywell)
R
WT
BL
G
W
120
VAC.
BK
W
Gas Valve
B
R
IGNITER
PILOT
ASSEMBLY
BK
G
Outlet Box Green
Ground Screw
Hot side of Outlet
Schematic Representation Only
*ON/OFF Switch (Integral
with Gas Valve)
White Wire
To Opposite
Side
*Leave the ON/OFF switch, which is integral
with the gas valve, in the ON position.
SPILL SWITCH
(high limit disc)
WT
G
Figure 19
Field Wired
Factory
Wired
Schematic Represen-
tation Only
* Optional Control Switches - OFF/ON wall
switch or remote control receiver.










