Indoor Fireplace User Manual

18
NOTE: DIAGRAMS & ILLUSTRATIONS ARE NOT TO SCALE.
Support
Brackets
Building
Support
Framing
SV4.5E90
Elbow
Ceiling
Fireplace
SV4.5L6/12/24/36/48
Vent Sections
Vertical
Rise
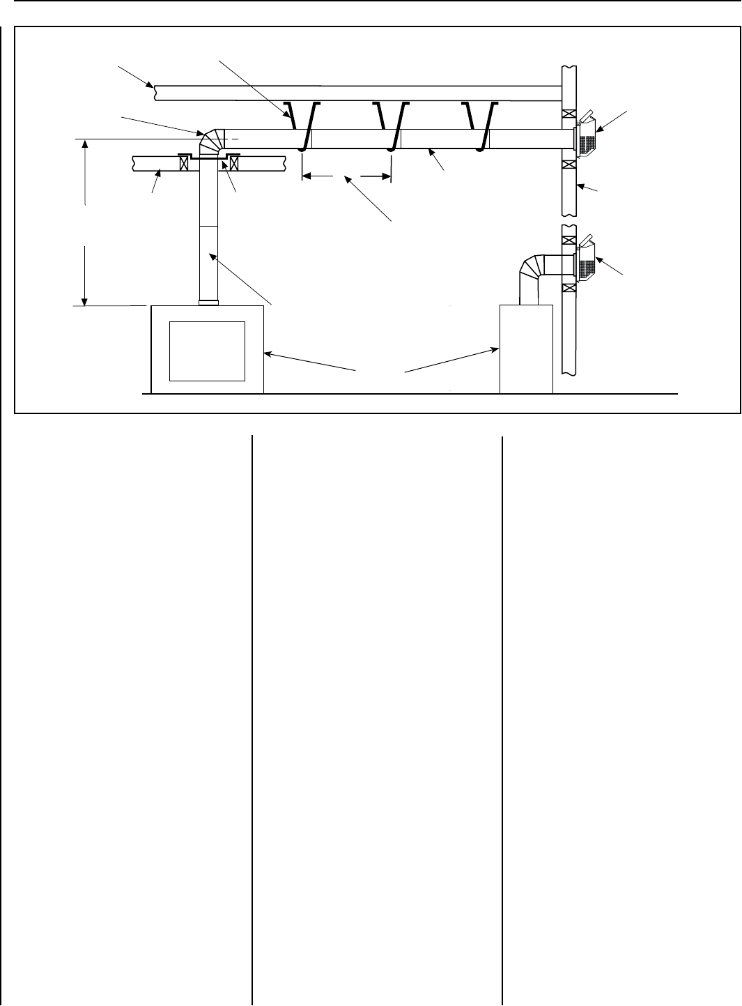
Support Bracket Spacing
Every 5 ft (1.52 m)
See Figure 17 on Page 13 or Figure 20 on
Page 14 for vertical vent section support.
TYPICAL HORIZONTAL VENT INSTALLATION
u When Using Secure Flex™,
Use Firestop / Spacer SF4.5VF
u Firestop / Spacer
SV4.5VF
Figure 28
Typical
Termination
Shown
Typical
Termination
Shown
Exterior
Wall
Horizontal / Inclined Run
LENNOX HEARTH PRODUCTS • MERIT
®
SERIES DIRECT-VENT GAS FIREPLACES • MODELS MLDVT-30/35/40/45 • INSTALLATION INSTRUCTIONS
Push the vent component against the previous
section until it fully engages, then twist the
component clockwise running the dimples down
and along the incline channels until they seat at
the end of the channels. This seating position
is indicated by the alignment of the arrow and
dimple as shown in Figure 19 on Page 14.
F. Install firestop/spacer at ceiling -
When using Secure Vent, use SV4.5VF restop/
spacer at ceiling joists; when using Secure Flex,
use SF4.5VF restop/spacer. If there is living
space above the ceiling level, the firestop/spacer
must be installed on the bottom side of the
ceiling. If attic space is above the ceiling, the
firestop/spacer must be installed on the top side
of the joist. Route the vent sections through the
framed opening and secure the firestop/spacer
with 8d nails or other appropriate fasteners at
each corner.
Remember to maintain 1" (25 mm) clearance
to combustibles, framing members, and attic
or ceiling insulation when running vertical
chimney sections. Attic insulation shield
(H3907) may be used to obtain the required
clearances indicated here. See installation
accessories Tables on Pages 35 and 36.
G. Support the vertical run sections -
See Section E on Page 15.
H. Change vent direction - At transition from or
to a horizontal/inclined run, install the SV4.5E45
and SV4.5E90 elbows in the same manner as
the straight vent sections.
The elbows feature a twist section to allow
them to be routed about the center axis of their
initial collar section to align with the required
direction of the next vent run element. Twist
elbow sections in a clockwise direction only
so as to avoid the possibility of unlocking any
of the previously connected vent sections (see
Figure 19 on Page 14).
I. Continue installation of horizontal/inclined
sections - Continue with the installation of the
straight vent sections in horizontal/inclined run
as described in Step E. Install support straps
every 5 ft. (1.52 m) along horizontal/inclined
vent runs using conventional plumber’s tape.
See Figure 28. It is very important that the
horizontal/inclined run be maintained in a
straight (no dips) and recommended to be in
a slightly elevated plane, in a direction away
from the fireplace of 1/4" rise per foot (20 mm
per meter) which is ideal, though rise per foot
run ratios that are smaller are acceptable all the
way down to at or near level.
It is important to maintain the required clear-
ances to combustibles: 1" (25 mm) at all sides
for all vertical runs; and 3" (76 mm) at the
top, 1" (25 mm) at sides, and 1" (25 mm) at
the bottom for all horizontal/inclined runs.
Use a carpenters level to measure from a
constant surface and adjust the support straps
as necessary.
D. Attach vent components to appliance - To
attach a vent component to the appliance collar,
align the dimpled end over the collar, adjusting the
radial alignment until the four locking dimples are
aligned with the inlets of the four incline channels
on the collar (see Figure 19 on Page 14).
Push the vent component against the collar
until it fully engages, then twist the component
clockwise, running the dimples down and along
the incline channels until they seat at the end of
the channels. The unitized design of the Secure
Vent™ components will engage and seal both
the inner and outer pipe elements with the same
procedure. Sealant and securing screws are
not required.
Note: An elbow may also be attached to the
appliance collar. Attach in the same manner
as you would a vent section.
E. Attach vent components to each other - Other
vent sections may be added to the previously
installed section in accordance with the require-
ments of the vent tables. To add another vent
component to a length of vent run, align the
dimpled end of the component over the inclined
channel end of the previously installed section,
adjusting the radial alignment until the four lock-
ing dimples are aligned with the inlets of the four
incline channels of the previous section.










