Indoor Fireplace User Manual
35
NOTE: DIAGRAMS & ILLUSTRATIONS ARE NOT TO SCALE.
WARNINGS
• Air shutter adjustment should
only be performed by a quali-
fied professional service tech-
nician.
• Ensure front glass panel are
in place and sealed during
adjustment.
CAUTIONS
• Soot will be produced if the
air shutter is closed too much.
Any damage due to sooting,
resulting from improperly
setting the air shutter, is not
covered under the warranty.
• The air shutter door and
nearby appliance surfaces
are hot. Exercise caution to
avoid injury while adjusting
flame appearance.
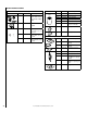
1. Refer to Figure 64 for proper flame appearance. To adjust the flame, rotate the adjustment rod toward the back or toward the front of the
fireplace (rod located in the lower control area). Position the air shutter to the factory setting as shown in the table in Figure 65.
2. Light appliance (follow lighting procedure on lighting label in control compartment or see the Care and Operation Manual).
3. Allow the burner to operate for at least 15 minutes while observing the flame continuously to ensure that the proper flame appearance has been
achieved. If the following conditions are present, adjust accordingly.
• If ame appears weak or sooty, adjust the air shutter, incrementally, to a more open position until the proper ame appearance is achieved.
• If ame remains blue, adjust the air shutter, incrementally, to a more closed position until the proper ame appearance is achieved.
4. Leave the control knob (off/pilot/on) in the ON position and the burner OFF/ON switch OFF (and remote switches, if applicable).
5. When satisfied that the burner flame appearance is normal, re-install the lower control compartment door then proceed to finish the installation.
Figure 64 - Burner Flame Appearance
Glowing Embers (Rockwool)










