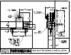
$24” WHEEL 307 HANGER 3030—XX11 21%," TREAD tem 1” (A TRACK Wed STOP 3030-XXX DRILL PILOT 1” DEEP FOR #12 OVAL HEAD SCREW x 104” 2 PLACES paces w/ 3%" LAG [ 3030—XX09 fe 114" FINISHED OPENING —— 7s" Leatherneck THIS PRINT IS THE PROPERTY OF LEATHERNECK HARDWARE, INC. AND IS LOANED TO THE RECIPIENT SUBJECT TO RETURN UPON DEMAND. ALL CONTENTS HEREIN ARE CONFIDENTIAL AND WIST NOT BE COPIED Hardware, Inc. | ‘or misuses To recursion pairs FOR Exultation furious Toe 1017 Be bis St.