Instruction Manual

2
2B
2A
Remove the four outer fixture screws located on top of
the fixture.
21
Remove the top portion of the fixture to reveal the lamp
sockets.
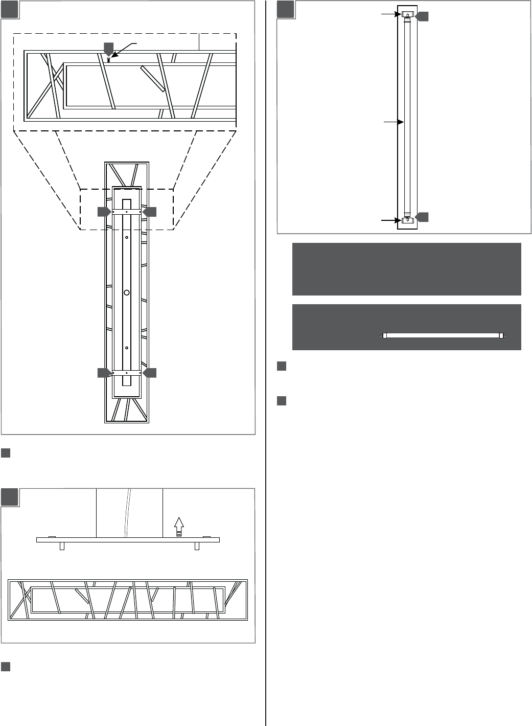
22
LAMP
LAMP SOCKET
LAMP SOCKET
Line up the lamp pins into the sockets and rotate the
lamps to lock it in place.
Reassemble the fixture (reversal of figure 2A and 2B).
use type T5 high output linear
fluorescent lamp.
MAX 24 Watt
CAUTION: To reduce the risk of a burn or electric
shock during relamping, disconnect the power to
the fixture.
3
3
2C
23
2
4
Install the Lamp
FIXTURE SCREW
1
1
1 1
1




