Manual

Materials:
Cabinet & door brushed stainless steel. Interior components galvanized steel. May be recessed and nished with optional trim
ange (part #2100-57D).
Operation:
The shelves of the Diaper Vender are easily reset by running the index nger up the right side of the shelves from bottom to top. If
not fully loaded use only the upper shelves. The top shelf has an automatic empty rod that will cause the coin mechanism to reject
and return all inserted coins when the vender is empty. The vender will be factory set to vend at $1.00.
Installation:
To insure proper installation and compliance to building codes, it is recommended that a qualied person or carpenter perform the
installation of the unit. The Diaper Vender meets ADA regulations when properly installed. Refer to Federal Register, Volume 56,
No. 144 28 CFR Part 36.
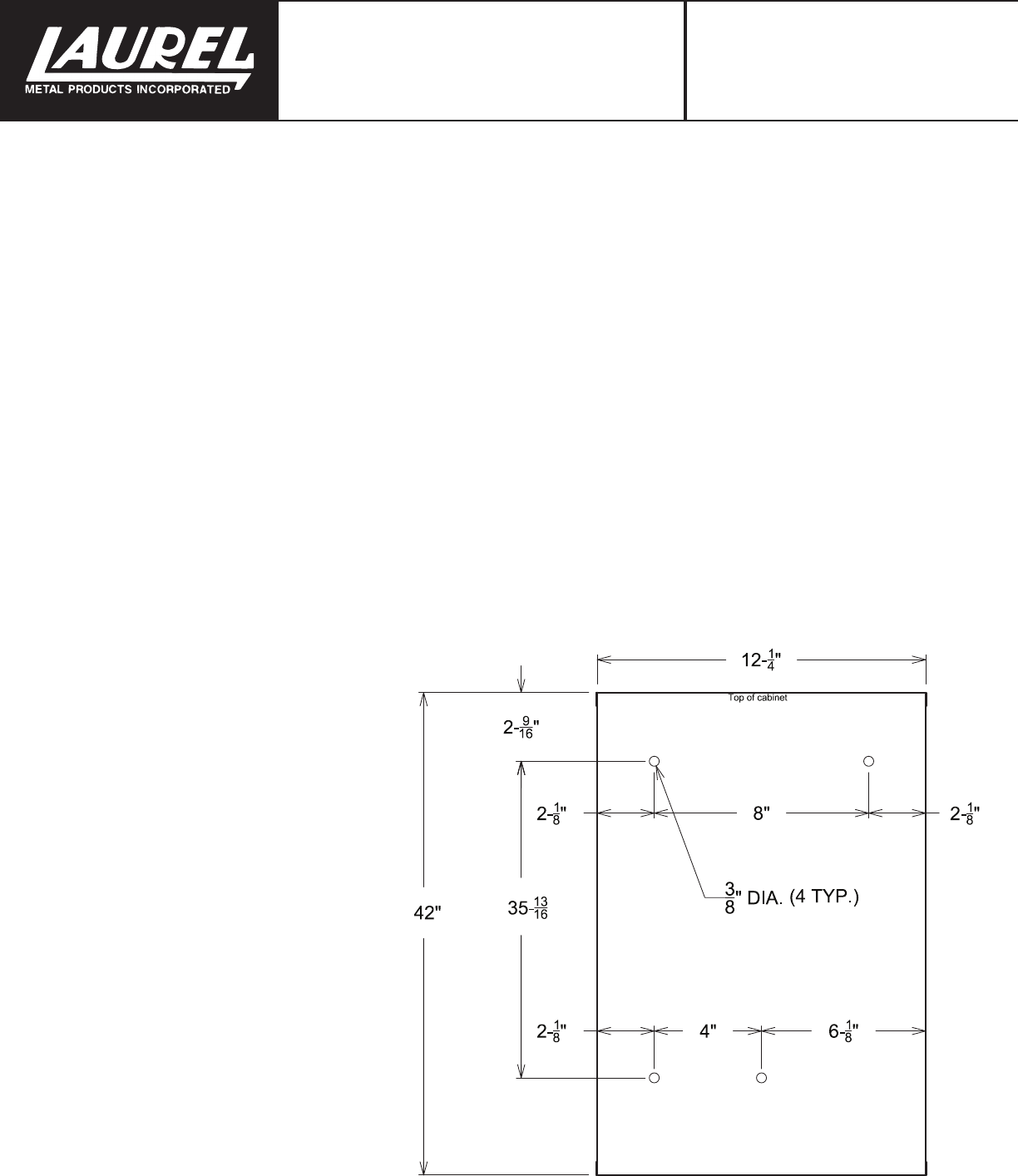
The vender can be mounted on a vertical surface without removing any part of the unit. Any standard fastener not larger than 3/8”
diameter can be used depending on the type of wall. Fasteners not included. The wall section selected for installation should be
sturdy.
The top two fasteners should be loosely installed in the wall with the heads of the fasteners projecting approximately ¼”. Raise the
top shelf of the magazine into its vend position to expose one of the two top mounting holes in the back of the cabinet. The keyhole
shape of the mounting holes will permit you to hang the cabinet on the top two fasteners. While in this unsecured position, mark
the bottom two mounting holes on the wall and remove the cabinet to allow easier access for drilling the holes needed for the lower
fasteners. Install the bottom two fasteners and secure the cabinet to the wall using washers under the heads of all fasteners.
Specication:
Diaper vender shall be durable stainless steel
cabinet. Unit shall have a 24-diaper pack
capacity and an adjustable coin mechanism.
Unit shall be backed by manufacturers 1-year
limited warranty on materials and workmanship.
Unit shall be manufactured in the USA.
Always consult local and national codes for
proper installation guidelines. Conformity and
compliance to local and national codes is the
responsibility of the installer.
The illustrations and descriptions herein are
applicable to production as of the date of this
technical data sheet. The manufacturer reserves
the right to makes changes and improvements in
designs and dimensions without notice.
Revised 05/2011
© 2011 by Laurel Metal Products
Page 2 of 2
Model 399-D
Electronic
Diaper Vending
Machine
Cabinet Back Panel Diagram