Instruction Manual

31
14. THERMOCOUPLE INPUT
The thermocouple signal conditioner board used for temperature measurement can be confi-
gured via jumpers for 7 thermocouple types, each in a single range: J, K, T, E, N, S, R. The
meter software recognizes the board and will bring up the appropriate menu items for it;
however, it does not recognize the jumper settings. Display in °C or °F and resolution of 1°,
0.1° or 0.01° are user programmable. High resolution should only be used for relative readings,
not absolute readings. Although available, 0.01° resolution is not recommended for thermo-
couples. Offset adjustment is available for thermocouples and is normally set to 0000.0. If °C is
selected, entering an offset of 0273.2 will change the display to Kelvin. If °F is selected,
entering an offset of 0459.7 will change the display to Rankin.
The addition of a relay output board turns the thermocouple meter from a temperature indicator
into an on/off temperature controller. Please see further manual sections for setup of the
following features: relay output (Section 16), analog output (17), and communications (18).
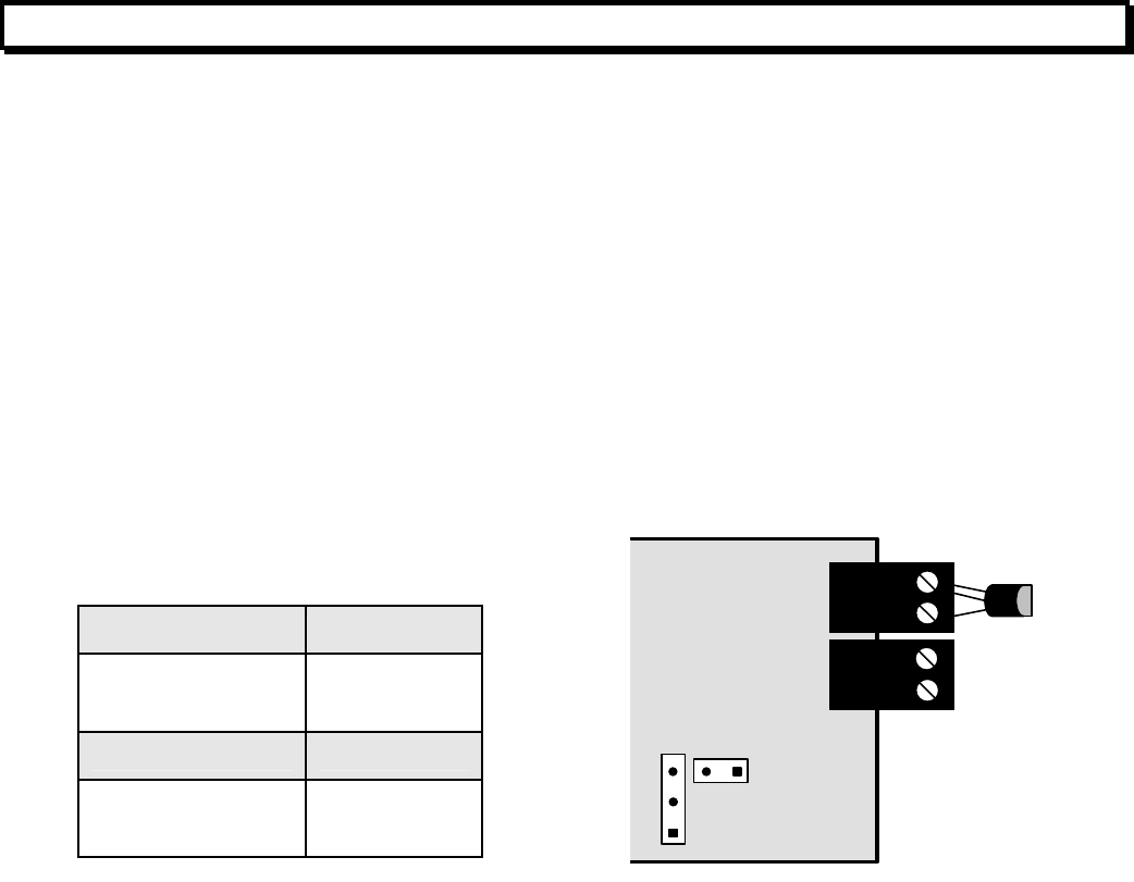
SIGNAL CONDITIONER BOARD SETUP VIA
JUMPERS
1. Letters indicate jumper position.
2. Jumpers are installed on pins adjacent to letters.
3. Use 2.5 mm (0.1") jumpers.
4. Store spare jumpers on an unused jumper post.
Type E4 Jumper
J, K, E, N
T, R, S
none
j
Open Indication E3 Jumper
Upscale
Downscale
h
i
h
i
j
E4
E3
3
4
1
2
PNP transistor
J5-X
J5-Y
c + b
e
- Sig
+ Sig










