Operation Manual

56
ППррииммееччааннииее::
Наибольшую интенсивность света
лазерный луч имеет в центре, а ближе к краям луч
тускнеет. Таким образом, максимальная дальность
приемника соответственно меняется: зеленый
светодиод " максимум 7"15 м, красный светодиод
– максимум 30 "50 м.
Дополнительно:
Работа с лазерным приемником RX 51:
Для работы на больших расстояниях или в условиях
яркого света используйте лазерный приемник RX 51.
Для этого нажмите кнопку D; загорится контрольная
лампа А.
ВВннииммааннииее::
Переключите ACL 2 в режим ручного
приемника (кнопка 10). Теперь лазерные линии начнут
пульсировать с высокой частотой (10 кГц) и поэтому
немного потускнеют. Лазерный приемник может
зафиксировать эти пульсирующие лазерные линии на
расстоянии до 50 м.
Теперь перемещайте поле приемника (F) лазерного
приемника вверх/вниз (горизонтальный лазер) и/или
вправо/влево (вертикальный лазер) относительно
лазерных линий до тех пор, пока не загорится
центральный светодиод (G). Теперь отметьте
горизонтальные и/или вертикальные контрольные
размеры.
Отрегулируйте чувствительность лазерного приемника с
помощью кнопки B. Зеленый светодиод (C) для ближних
дистанций работает на расстоянии до 15 м, красный
светодиод (C) для дальних дистанций работает на
расстоянии до 50 м. Звук можно включить или
отключить кнопкой E.
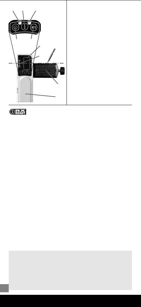
B
A
C
D
E
G
F
I
H
РУССКИЙ
AutoCross Laser ACL 2
A
Индикатор питания
B
Переключатель точности
короткая / дальняя
дистанция
C
Светодиод точности
зеленый / красный
D
Выключатель
E
Выключатель звука
F
Поле приемника для
лазерного луча
G
светодиоды индикации
лазера (передний,
боковой, задний)
H
Универсальное крепление
I
Отсек для элементов
питания (сзади)










