Installation Instructions

Instrucciones de la mortaja
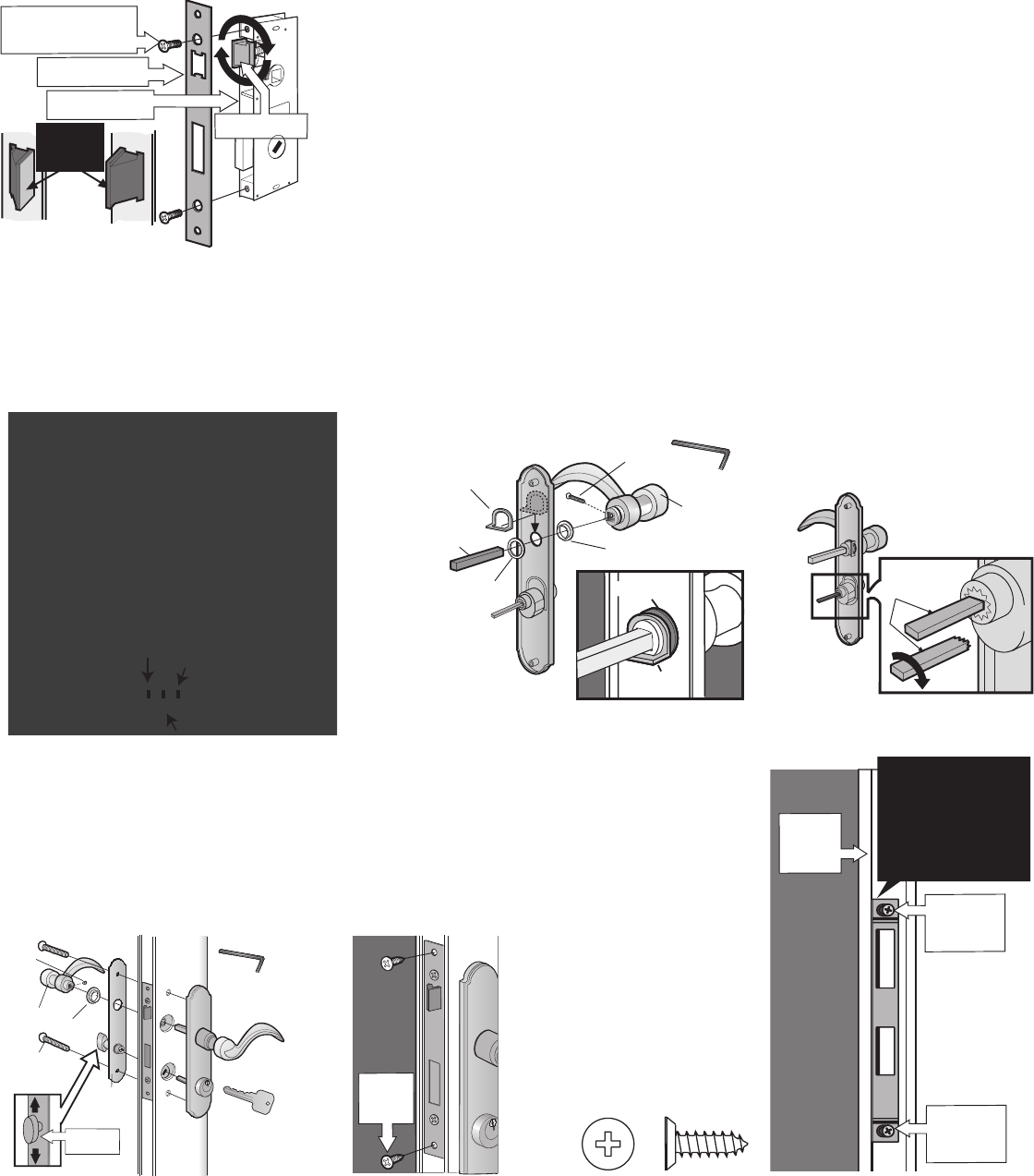
1.
Verifique que el borde plano del pestillo de seguridad esté ori-
entado hacia el exterior de la puerta, alineado para una posición
izquierda o derecha que corresponda con la orientación de la
bisagra de su puerta. Puede ser necesario retirar la placa de la
mortaja del ensamble para invertir el pestillo. Gire el pestillo de
seguridad y reposicione la placa de la mortaja, fijándola con los
tornillos de ensamblaje del pestillo.
PARTE EXTERNA:
Borde plano
Tornillo de ensamblaje
del pestillo
Placa de la mortaja
Ensamble del pestillo
Pestillo de seguridad
Posición de la
bisagra derecha
Posición de la
bisagra izquierda
3b.
Inserte la llave y rote el eje del pestillo de
doble seguridad de modo que el código de la
letra adecuada esté orientado hacia arriba.
Código de letra:
"R"= instalaciones en puertas de bisagras a
la derecha "L"= instalaciones en puertas de
bisagras a la izquierda
3a.
Ensamble la manija exterior y el cojinete a través de la placa de
ajuste exterior. Desde la parte posterior de la placa de ajuste,
coloque la arandela plana en el poste de la manija y deslice el
sujetador en "D" sobre la arandela. Cerciórese de que el sujeta-
dor en "D" esté colocado con la abertura hacia abajo como se
ilustra y luego inserte el eje en la manija. Apriete el tornillo de
fijación con la llave hexagonal (Allen) que se suministra.
Sujetador en "D"
Eje
Arandela plana
Sujetador en "D"
Arandela plana
Manija exterior
Cojinete
Llave hexagonal
Tornillo de fijación
R
L
Código de letra
3c.
Instale el ensamble de la manija como se ilustra. Cerciórese
que el eje del pestillo de doble seguridad esté correctamente
orientado según se describe en 3b. Alinee la perilla giratoria
interna en posición vertical. Desde la parte interna
de la puerta, alinee las placas de ajuste y fije utilizando dos
tornillos para placa de ajuste. Sostenga juntas las manijas y
apriete el tornillo de fijación de la manija interior utilizando
Tornillo de
fijación
Llave hexagonal
Ensamble de la manija
EXTERIOR
Una LLAVE puede que
sea necesaria para
girar el eje
Manija interior
Cojinete
T
ornillo para placa de ajuste
Placa de
ajuste interior
Perilla giratoria
3d.
Fije el cuerpo de la mortaja
utilizando dos tornillos para
mortaja.
Tornillo para
mortaja
Tornillo corto para placa
Nº 8 x 7/16" cant. 2
4.
Tornillos cabeza plana
Nº 8 para placa
Tornillos cabeza plana
Nº 8 para placa
MARCO DE
MONTAJE
Tornillos ubicados en la ranura
posterior de la placa receptora
Placa receptora ubicada contra
el frente del área de montaje
Abra la puerta y coloque la placa
receptora en el marco de montaje. Deslice
la placa receptora hacia el borde del
marco de montaje como se ilustra. Perfore
con el punzón y taladre (2) agujeros guía
de 3/32" como se ilustra. Coloque dos
tornillos cabeza plana Nº 8, pruebe el
funcionamiento de la cerradura y ajuste la
placa según sea necesario. Revise que el
pestillo y la cerradura de doble seguridad
funcionen adecuadamente.
2.
Recorte el husillo plano del cilindro de la llave al largo necesario utilizando el gráfico
superior. Para puertas de 1-1/8 a 1-1/2 pulgadas de espesor, el husillo cuadrado
necesitará ser insertado en la manija exterior hasta la 3ra línea en el paso 3a. Para
puertas de 1-1/2 – 1-5/8 pulgadas de espesor, el husillo cuadrado necesitará ser
insertado en la manija exterior hasta la 2ª línea en el paso 3a. Para puertas que son de
1-5/8 a 2 pulgadas de espesor, el husillo necesitará ser insertado en la manija exterior
hacia la primera línea en el paso 3a.
202220711CHW
Garantía limitada de LARSON - Este producto está garantizado contra defectos de material y mano de obra por un período de un año desde la fecha de compra
original al minorista. El rendimiento según esta garantía requiere notificación por parte del propietario a LARSON Manufacturing y prueba de compra. Para preguntas
sobre la garantía o la instalación, llame al 888-483-3768 o visite larsondoors.com.
1-1/8” – 1-1/2”
1-1/2” – 1-5/8”
1-5/8” – 2”
PARA EL PASO 2, CONSULTE LA TABLA
DE HUSILLO Y LONGITUD DE TORNILLO
UBICADA EN LAS INSTRUCCIONES DE
INSTALACIÓN PROPORCIONADAS CON
EL PRODUCTO.


