
Product Service 1-800-522-7658
35
A
A
p
p
p
p
e
e
n
n
d
d
i
i
x
x
B
B
:
:
P
P
r
r
o
o
t
t
e
e
c
c
t
t
o
o
r
r
X
X
L
L
E
E
D
D
i
i
m
m
e
e
n
n
s
s
i
i
o
o
n
n
s
s
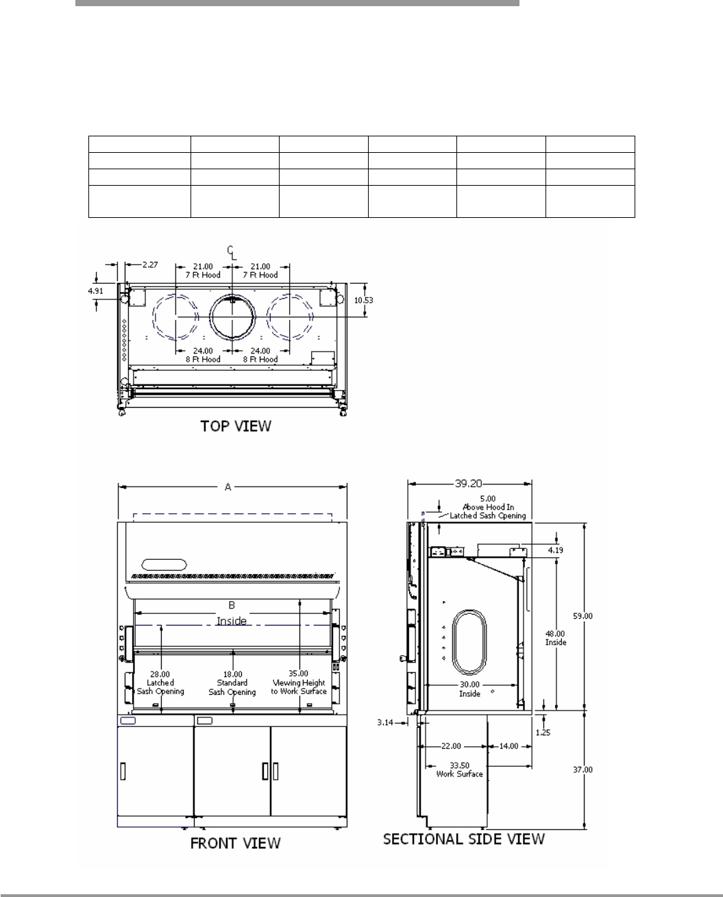
XLE Model Widths
4' 5' 6' 7' 8'
A 48.00 60.00 72.00 84.00 96.00
B 38.25 50.25 62.25 74.25 86.25
Duct Spacing C/L
One Duct
C/L
One Duct
C/L
One Duct
42.00
Two Ducts
48.00
Two Ducts