Manual

Chapter 3: Getting Started
Product Service 1-800-522-7658
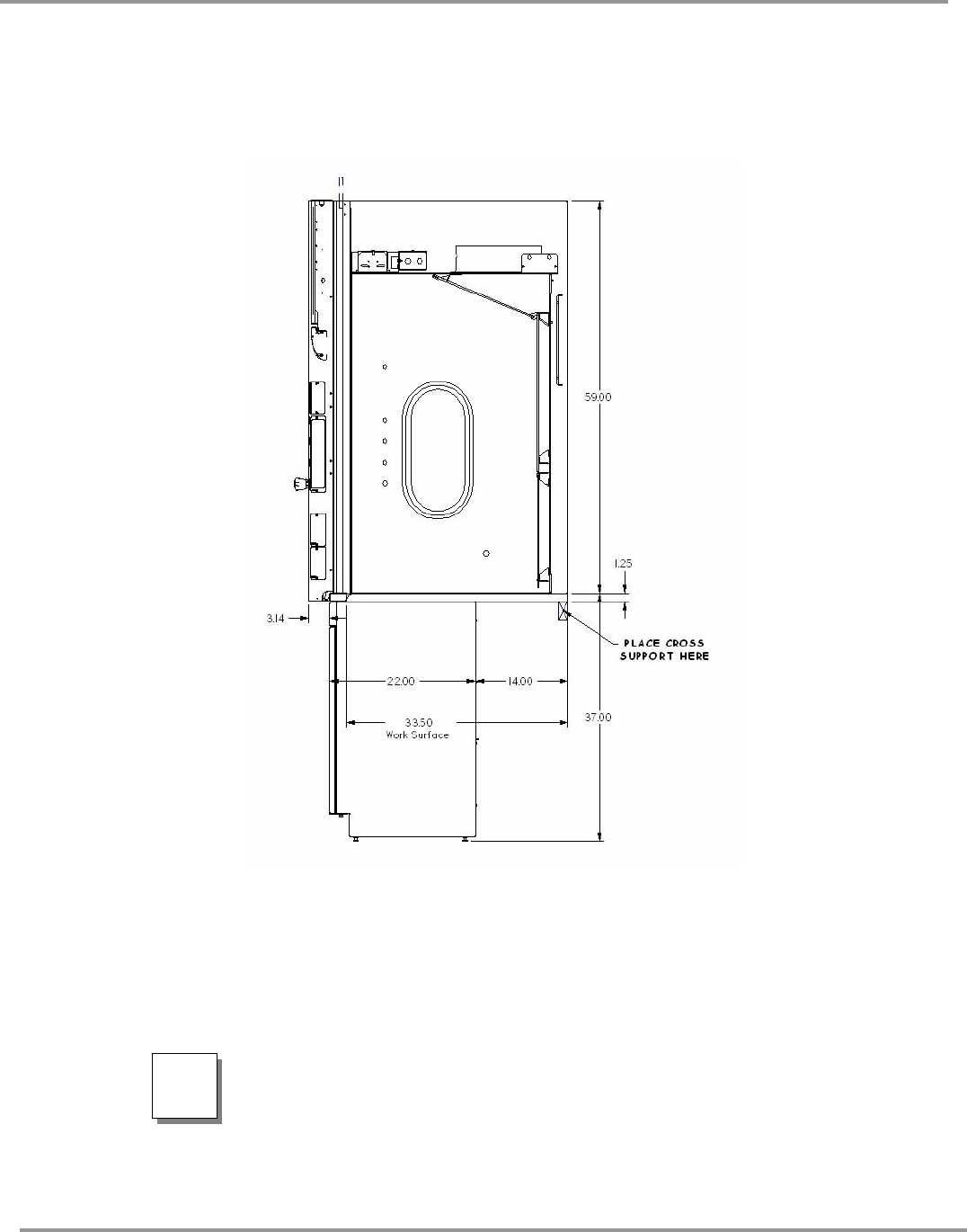
11
The work surface should be smooth and durable, such as a chemically-resistant
epoxy resin. The surface should be nonporous and resistant to the acids, solvents,
and chemicals used in conjunction with the Protector Fume Hood. The work
surface should also contain a dished recessed area for containing primary spills.
Connecting to the Protector XLE Hood
Exhaust System
WARNING: The weight of the exhaust ductwork system must
be supported independently of the hood superstructure. Do
not allow this weight to be supported by the hood structure as
damage to the hood may occur.
!
Figure 3-1