Specification

Technical Information
Fixture*:
Bathing well:
Basin area,
bottom
49 (1245 mm) x 22 (559 mm)
Basin area, top 62 (1575 mm) x 28 (711 mm)
Weight 455 lbs (206.4 kg)
To overflow:
Water depth 17 (432 mm)
Capacity 89 gal (336.9 L)
* Approximate measurements for comparison only.
Drop-in cut-out 70-1/4 (1784 mm) x 34-1/2 (876 mm)
Cut-out for
undermount
K-582
Blower
motor:
Heater V Hz A
300 W 220-240 50/60 3
Required Electrical Service
Dedicated circuit required, protected with Class A
Ground-Fault Circuit-Interrupter (GFCI):
Blower motor/control 220-240 V, 15 A, 50/60 Hz
Installation Notes
Install this product according to the installation guide.
NOTICE: If the blower motor and check valve are
relocated, two access panels are required. Locate one
access panel at the blower motor/control location and the
other at the control box. Locate the blower motor and check
valve together.
Floor support under bath must provide for a minimum of 69
lbs/square foot (333 kg/square meter) loading.
Splitting the deck/surround is recommended if installing into a
deck.
Hot water supply should be 70% of capacity or greater.
Installations will vary.
No change in measurements if connected
with drain illustrated. (K-7169-AF)
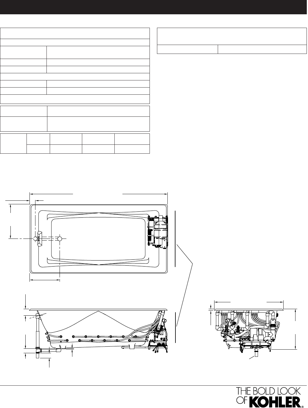
Blower Motor/Control Access
34" (864 mm) W x
15" (381 mm) H
36" (914 mm)
71-3/4" (1822 mm)
15-5/8"
(397 mm)
20-7/8"
(530 mm)
18"
(457 mm)
1-1/2" OD
2-7/8"
(73 mm)
3" (76 mm)
2-1/2"
(64 mm)
3/4"
(19 mm)
3-1/2"
(89 mm)
1/4" (6 mm)
Product Diagram
TEA-FOR-TWO
®
TEA-FOR-TWO
®
6’ (1.8 m) BUBBLEMASSAGETM BATH
Page2of2
1146823-4-
C