Specification

Technical Information
Fixture*:
Bathing well:
Basin area, bottom 45″ (1143 mm) x 25″ (635 mm)
Basin area, top 58″ (1473 mm) x 29″ (737 mm)
Weight 510 lbs (231.3 kg)
To overflow:
Water depth 19-1/2″ (495 mm)
Capacity 105 gal (397.5 L)
* Approximate measurements for comparison only.
Drop-in cut-out 64-1/2″ (1638 mm) x
34-1/2″ (876 mm)
Cut-out for undermount K-587
Blower
motor:
Heater V Hz A
300 W 220-240 50/60 3
Required Electrical Service
Dedicated circuit required, protected with Class A
Ground-Fault Circuit-Interrupter (GFCI):
Blower motor/control 220-240 V, 15 A, 50/60 Hz
Installation Notes
Install this product according to the installation guide.
NOTICE: If the blower motor and check valve are
relocated, two access panels are required. Locate one
access panel at the blower motor/control location and the
other at the control box. Locate the blower motor and check
valve together.
Floor support under bath must provide for a minimum of 86
lbs/square foot (418 kg/square meter) loading.
Splitting the deck/surround is recommended if installing into a
deck.
Hot water supply should be 70% of capacity or greater.
Installations will vary.
No change in measurements if connected with
drain illustrated. (K-7147-AF)
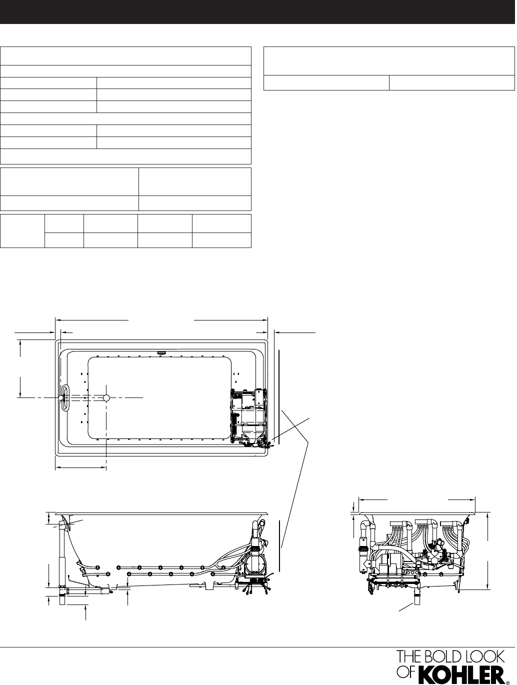
Blower Motor/Control Access
34" (864 mm) W x
15" (381 mm) H
NOTE: Blower protrusion beyond the rim.
66" (1676 mm)
18"
(457 mm)
15-7/8"
(403 mm)
1-1/2"
(38 mm)
1"
(25 mm)
2-7/8"
(73 mm)
2-1/2"
(64 mm)
1-1/2" OD
36" (914 mm)
24"
(610 mm)
3/4"
(19 mm)
3" (76 mm)
1/2" (13 mm)
Product Diagram
TEA-FOR-TWO
®
TEA-FOR-TWO
®
5.5’ (1.7 m) BUBBLEMASSAGETM BATH
Page2of2
1146821-4-
B


