Specification

Technical Information
Fixture*:
Bathing well
Basin area
bottom
43″ (109.2 cm) x 24-5/8″ (62.5 cm)
Basin area
top
53-1/2″ (135.9 cm) x 32-1/8″ (81.6 cm)
Weight 110 lbs (50 kg)
To overflow
Water depth 15″ (38.1 cm)
Capacity 57 gal (215.9 L)
* Approximate measurements for comparison only.
Included components:
Cut-out template 1042556-7
Blower motor Heater V Hz A
1 Hp 300 W 120 60 5
Minimum access panel blower motor:
20″ (50.8 cm) W x 15″ (38.1 cm) H required
Required Electrical Service
Dedicated circuit required, protected with a Class A
Ground-Fault Circuit-Interrupter (GFCI):
Pump/control 120 V, 5 A, 60 Hz
Locate the outlet behind the bath and within 24″ (61 cm)
of the pump.
Installation Notes
Install this product according to the installation guide.
Floor support under this product must provide for a minimum
of 35 lbs/square foot (171 kg/square meter) loading.
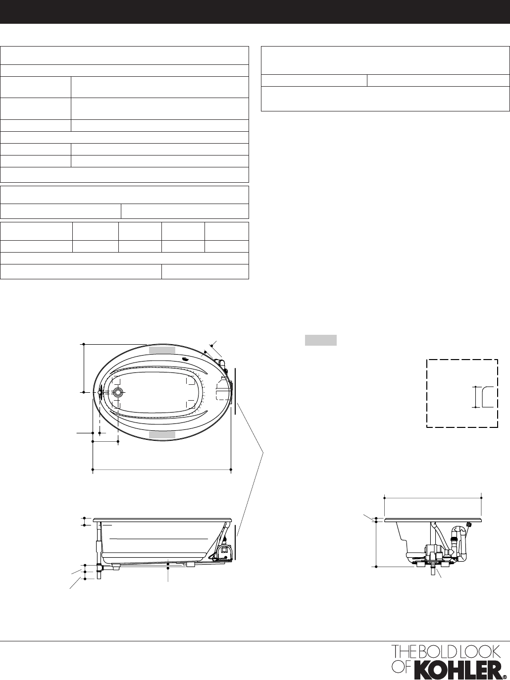
19-1/2"
(49.5 cm)
1-1/2"
(3.8 cm)
3-1/8"
(7.9 cm)
3-1/2"
(8.9 cm)
1-1/2" OD
10-13/16" (27.5 cm)
60" (152.4 cm)
42" (106.7 cm)
2-5/8" (6.7 cm)
2-7/8" (7.3 cm)
3" (7.6 cm)
Drop-In Rim Detail
21"
(53.3 cm)
Recommended faucet area
No change in measurements if connected with
drain illustrated. (K-11677 or K-11677M)
1-1/2"
(3.8 cm)
1" (2.5 cm) from
the Floor to the
Bottom of the Drain
Blower/Control Access
20" (50.8 cm) W x
15" (38.1 cm) H Min
Product Diagram
SUNWARD
®
SUNWARD
®
5’ (1.5 m) BATH WITH AIRJETS
Page2of2
1079335-4-
A


