Download
Manuals
Brands
Kogan Manuals
Cameras & drones
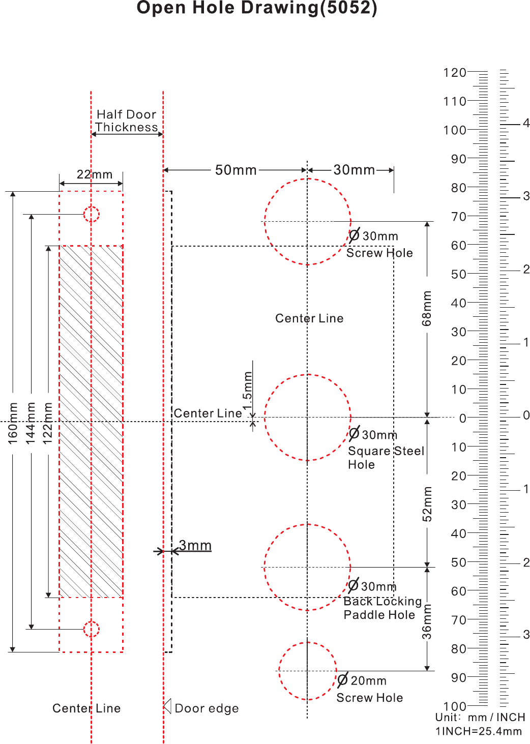
Kogan SmarterHome⢠IP54 Battery Powered Fingerprint Smart Wi-Fi Door Lock
1
1
Summary of content (1 pages)
PAGE 1