Manual PDF

6
INSTALLATION
PLEASE READ ENTIRE INSTRUCTIONS BEFORE PROCEEDING
Calculation before Installation
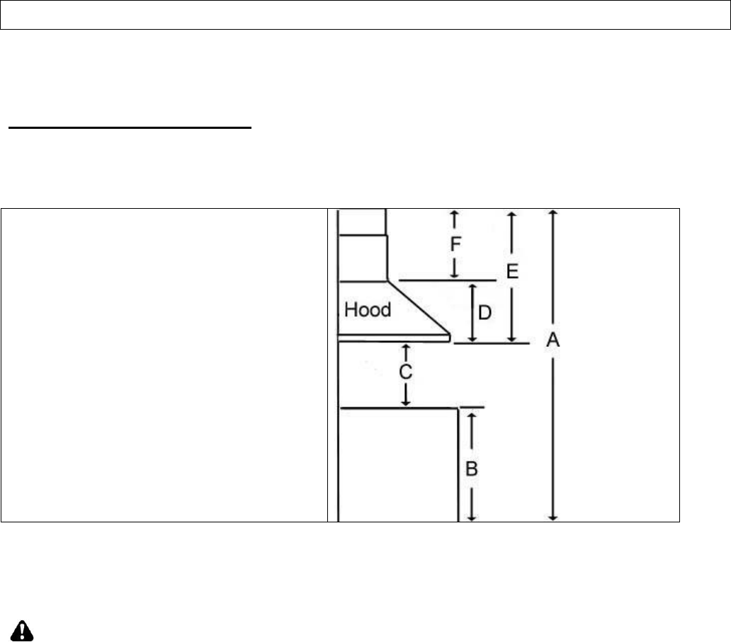
To calculate installation, please refer to TABLE 1. (All calculation in inches)
TABLE 1
A = Height of Floor to Ceiling
B = Height of Floor to Counter Top
(Standard: 36”)
C = Preferred Height of Counter Top to
Hood Bottom (Recommended 27” to 32”)
D = Height of Hood
E = Height of the Hood Installation
[A – (B+C)]
F = Height of Duct Cover
[E – D]
SAFETY WARNING
HOOD MAY HAVE VERY SHARP EDGES; PLEASE WEAR PROTECTIVE GLOVES IF
REMOVING ANY PARTS FOR INSTALLING, CLEANING OR SERVICING.
NOTE: BE CAREFUL WHEN USING ELECTRICAL SCREWDRIVER, DAMAGE TO THE
HOOD MAY OCCUR.