manual

4
INSTALLATION
PLEASE READ ENTIRE INSTRUCTIONS BEFORE PROCEEDING
Calculation before Installation
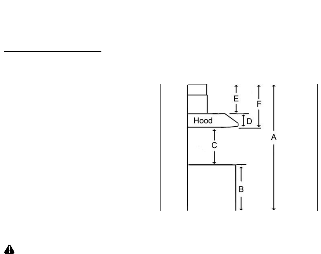
To calculate installation, please refer to TABLE 1. (All calculation in inches.)
TABLE
1
A = Height of Floor to Ceiling
B = Height of Floor to Counter Top
(Standard: 36")
C = Preferred Height of Counter Top to
Hood Bottom (Minimum 26" to 30")
D = Height of Hood
E = Height of Duct Cover [F – D]
F = Height of the Hood Installation
[A – (B+C)]
SAFETY WARNING
HOOD MAY HAVE VERY SHARP EDGES; PLEASE WEAR PROTECTIVE GLOVES IF
REMOVING ANY PARTS FOR INSTALLING, CLEANING OR SERVICING.
NOTE: BE CAREFUL WHEN USING ELECTRICAL SCREWDRIVER, DAMAGE TO THE HOOD MAY
OCCUR.