Dimensions Guide

4
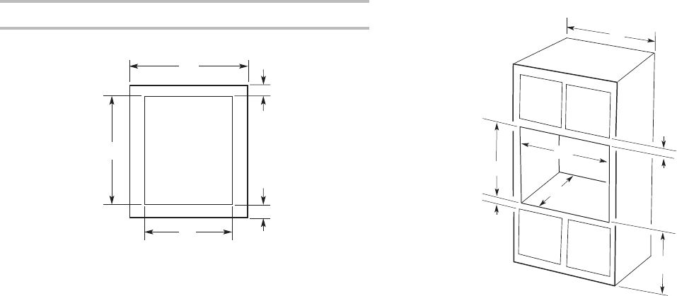
Cabinet Dimensions - Single Ovens
Single Oven Undercounter (Without Cooktop Installed Above)
Single Ovens Installed in Cabinet
* NOTE: The cutout height can be between 26
15
/
16
" and 29
7
/
16
"
(68.4 cm and 74.8 cm) for single ovens.
A
B
C
D
E
30" (76.2 cm) models
A. 30" (76.2 cm) min. cabinetwidth
B. 1
1
/
2
" (3.8 cm) min. top ofcutout
to underside ofcountertop
C. 5
1
/
4
" (13.3 cm) bottom ofcutout
to oor
D. 28
1
/
2
" (72.4 cm) cutoutwidth
E. 28" (71.2 cm) min. cutoutheight
F
E
B
C
A
D
G
30" (76.2 cm) models
A. 30" (76.2 cm) min. cabinetwidth
B. 1" (2.5 cm) top of cutoutto bottom of
uppercabinet door
C. 32" (81.3 cm) bottom of cutout to oor
D. 28
1
/
2
" (72.4 cm) cutoutwidth
E. 1
1
/
2
" (3.8 cm) min. bottomof cutout to
topofcabinet door
F. 28" (71.2 cm)* recommended
cutoutheight
G. 24" (60.7 cm) cutout depth










