Manual
3.3 CREATE A FIRM BASE TO MOUNT THE TRIPOD STAND WITH THE
KIPP & ZONEN LOGO POINTING EAST
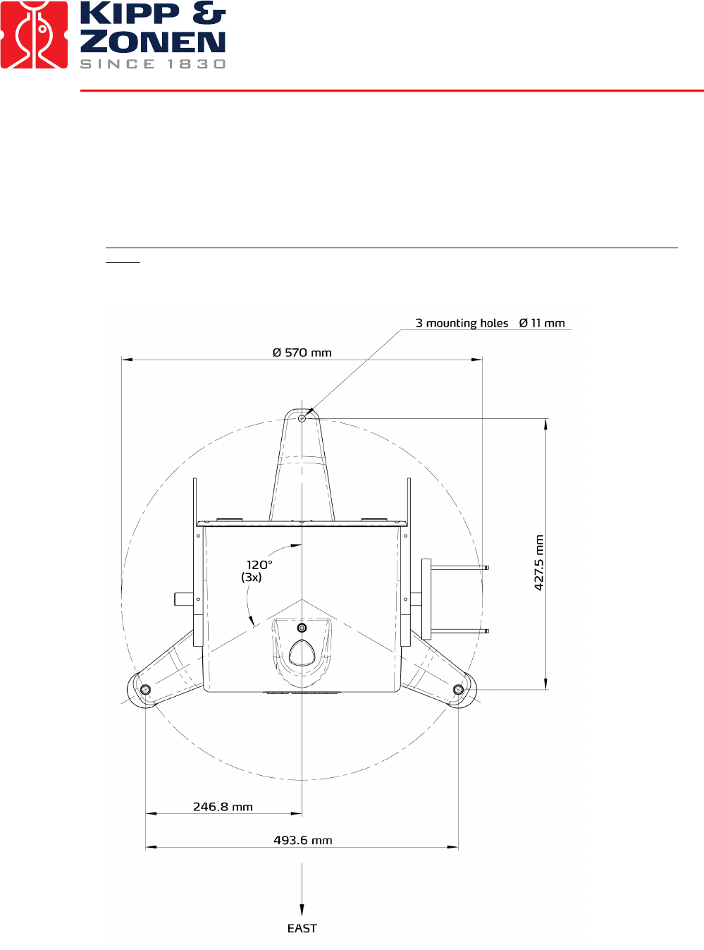
The tripod feet have 11 mm mounting holes to fix the SOLYS 2 to a firm base. Illustration 4.4 will provide
the necessary information to create a firm base.
NOTE: The tripod feet has a KIPP & Zonen logo present which needs to be pointed to the
East !
It is advised to perform the leveling and alignment during installation of the SOLYS 2, options and
instruments first, before actually tighten the tripod feet to the firm base.
Figure 4.4: Tripod Stand footprint
