User's Guide COMBINATION SMOKE & CARBON MONOXIDE ALARM KN-COSM-BCA

I n s t a l l a t i o n
11
DIAGRAM A
DIAGRAM B
ANYWHERE
IN THIS AREA
NOT IN
THIS AREA
HORIZONTAL DISTANCE FROM PEAK
Recommended Installation Locations
IMPORTANT:This alarm must be mounted on a ceiling
or wall. It was not designed for use as a tabletop device.
Install only as directed.
Kidde recommends the installation of a Smoke/CO
Alarm in the following locations. For maximum
protection we suggest an alarm be installed on each
level of a multilevel home, every bedroom, hallways,
finished attics and basements. Put alarms at both ends
of bedroom, hallway or large room if it is more than
30’. (9.1m) long. If you have only one alarm, ensure it
is placed in the hallway outside of the main sleeping
area, or in the main bedroom. Verify the alarm can be
heard in all sleeping areas.
Locate an alarm in every room where someone sleeps
with the door closed. The closed door may prevent an
alarm located outside that room from waking the
sleeper. Smoke, heat and combustion products rise to
the ceiling and spread horizontally. Mounting the
alarm on the ceiling in the center of the room places it
closest to all points in the room.
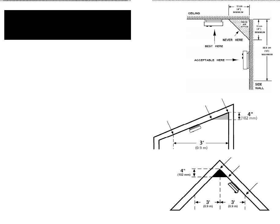
Ceiling mounting is preferred in ordinary residential
construction. When mounting an alarm on the ceiling,
locate it at a minimum of 4” (10cm) from the side wall
(see Diagram A). If installing the alarm on the wall,
use an inside wall with the top edge of the alarm at a
minimum of 4” (10cm) and a maximum of 12” (30.5cm)
below the ceiling (see Diagram A).
I n s t a l l a t i o n
10
▲
!
WARNING - This product is intended for
use in ordinary indoor locations of family
living units. It is not designed to measure
compliance with commercial or
industrial standards.
ANYWHERE
IN THIS AREA
NOT IN
THIS AREA










