User Guide
Table Of Contents

• Locate an alarm in every room where electrical appliances are
operated (i.e. portable heaters or humidifiers).
• Locate an alarm in every room where someone sleeps with the
door closed. The closed door may prevent an alarm not located
in that room from waking the sleeper.
• Smoke, heat, and combustion products rise to the ceiling and
spread horizontally. Mounting the smoke alarm on the ceiling in
the center of the room places it closest to all points in the room.
Ceiling mounting is preferred in ordinary residential construc-
tion.
• For mobile home installation, select locations carefully to avoid
thermal barriers that may form at the ceiling. For more details,
see MOBILE HOME INSTALLATION below.
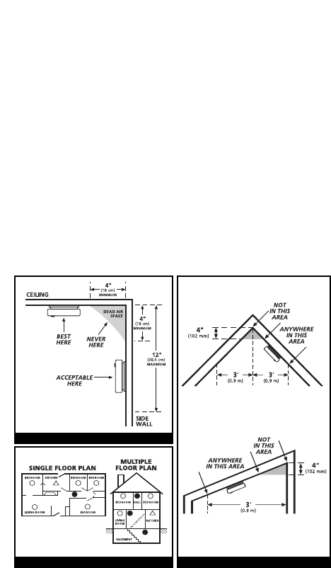
• When mounting an alarm on the ceiling, locate it at a minimum
of 4” (10cm) from the side wall (see figure 1).
• When mounting the alarm on the wall, use an inside wall with
the top edge of the alarm at a minimum of 4” (10cm) and a
maximum of 12” (30.5cm) below the ceiling (see figure 1).
FIGURE 2 FIGURE 3
FIGURE 1










