Manual

KRE-2: Metal Enclosure
2305 Bering Drive 01854-001 Rev. E
San Jose, CA 95131 USA
(800) 260-5265 (408) 435-8400 FAX (408) 577-1792
Web: www.kerisys.com E-mail: sales@kerisys.com Page 2 of 4
Quick Start GuideKRE-2
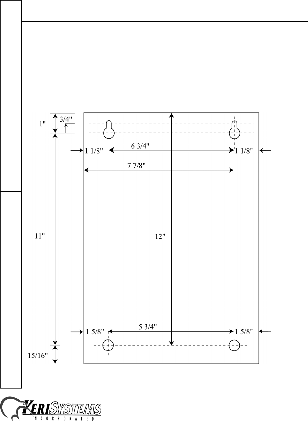
2.0 Enclosure Mounting
The easiest method for marking the location of the mounting holes for drilling is to hold the
enclosure against the mounting surface and then use a pencil to mark the mounting hole locations
against the surface to which the enclosure is to be mounted. If this is not practical, Figure 2 is a
layout drawing of the mounting hole locations.
NOTE: Figure 2 provides the measurements for the mounting hole locations. Figure 2 is not an
actual size drawing and cannot be used as a drilling template.
Figure 2: Enclosure Mounting Holes




