Operator Manual Firmware Ver.3.05 and higher Instruction Manual

Table Of Contents
2-20 BOP-1K-GL 022814
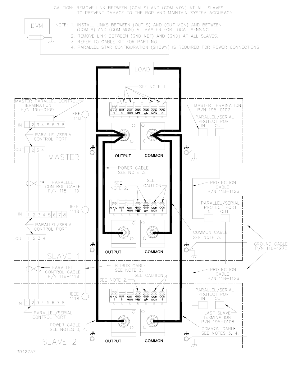
FIGURE 2-7. PARALLEL CONFIGURATION, LOCAL SENSING, TYPICAL
NOTE: Consult factory for configurations requiring more than two units in parallel.