Instruction Manual

III. INSTALLATION INSTRUCTIONS FOR FIRE SAFE VALVES:
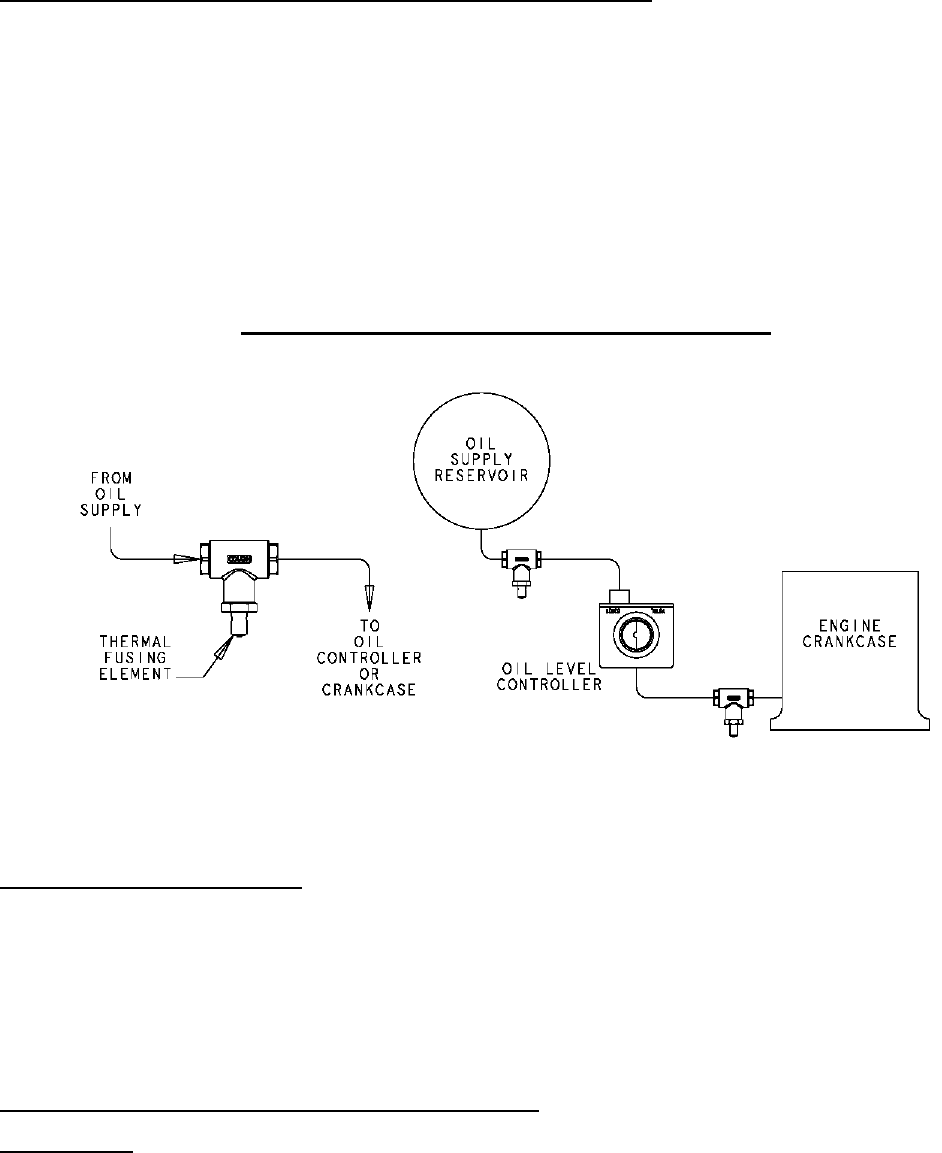
MODEL 50-KFS AND 75-KFS (PATENT NO. 3,877,476)
NOTE: All lines between thermal valves, supply tanks and the controller must be made of steel. DO NOT use rubber hose. The
lines should be 3/4” I.D.
The eutectic fuse element should always be in a downward position to help the element melt when heat is applied to the valve.
The 50-KFS valve has 1/2” FNPT threads and should be installed in the oil supply line as close to the controller as possible.
Meters, filters and pressure regulators should be installed between the controller and the 50-KFS.
The 75-KFS valve has 3/4” FNPT threads and should be located as close to the crankcase as possible and the oil outlet line
should be a minimum 3/4” I.D. to insure adequate oil flow to the crankcase.
NOTE: The 75-KFS valve is not required when using –FS adapters other than –9, -10 & –12.
FIGURE 4: FIRE SAFE VALVE INSTALLATION
Note: Flow on the KFS valve is bidirectional. Either port can serve as the inlet or outlet.
IV. START-UP PROCEDURES
Flush the supply system and supply line with solvent to remove all burrs and construction debris.
Insure that the oil supply tank is full.
After the engine has been running for 1 hour, visually check the oil level in the sight glass. The oil level should be in the center
of the sight glass depending on static head pressure.
With the engine running, check the crankcase oil level. It should be the same as the oil level in the oil controller. If not, check
the installation of the equalizing line (if applicable). See instruction for the equalizing line at –9.
Check all piping connections for leaks and repair as needed.
V .SIX MONTH SUGGESTED MAINTENANCE PLAN
Oil Valve Service
Close the oil supply valve and disconnect the oil inlet supply line.
Place a pan under the controller to catch the oil from the oil supply line.
Remove and clean the oil inlet valve screen.
Once the screen is clean, reassemble and open the oil supply valve.
Note: Dispose of oil in a proper container.
12-19-08 A-55121






