Instruction Manual

KENCO ENGINEERING COMPANY
P.O. BOX 470426 ● TULSA, OK 74147-0426
PHONE: (918) 663-4406 ● FAX: (918) 663-4480
www.kenco-eng.com ● e-mail: info@kenco-eng.com
INSTALLATION INSTRUCTIONS FOR MODEL KLC
OIL LEVEL CONTROLLERS WITH ADAPTERS (INCLUDING HIGH PRESSURE MODELS)
Note: For fire safe oil level controllers, see additional instructions in this work sheet covering installation of fire safe valves.
I. INSTALLATION AND MAINTENANCE INSTRUCTIONS FOR OIL INLET VALVE:
Connect the oil supply line to the oil inlet on the oil level controller. The minimum recommended supply line is ¾” I.D. The
supply line must be clean and it is recommended that it be flushed with solvent before installation.
Connect the oil supply line to the oil supply tank. If there is no existing valve at the tank or the existing supply outlet, a shut-off
valve should be placed in the line to prevent oil loss when cleaning the controller inlet screen or filter.
For HP-A high pressure models
, pressure range must be between 10 psig and 35 psig. For HP-B high pressure models,
pressure range must be between 36 psig and 70 psig.
The oil inlet valve is set to maintain the oil level at the center of the sight glass when oil inlet pressure is at midrange. Low or
high levels are often caused by two problems:
1. Excessive oil inlet pressure, which will cause the unit to overfill.
2. Improper equalizing lines between the crankcase and the controller will also result in improper levels.
Note: Low pressure models require a minimum of 2’ of oil inlet head pressure and a maximum of 25’ of oil inlet head pressure.
II. INSTALLATION INSTRUCTIONS FOR UNITS WITH ADAPTERS:
OIL LEVEL CONTROLLERS WITH –9 (Universal adapter), -10 (Slotted universal adapter), -12 (Post mounted adapter) AND –
FS OPTIONS
Attach the controller to the mounting adapter using the Kenco supplied bolts (and washers if applicable). The recommended
torque for the bolts is 20 ft-lbs.
Mount the controller so that the centerline of the sight window corresponds to the running oil level in the crankcase. Connect
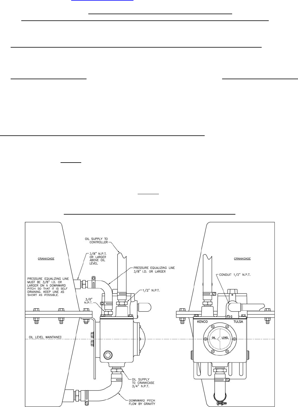
the hose from the ¾” outlet of the controller to the crankcase. NOTE: The outlet port on the oil level controller must be
located below the oil level in the crankcase.
An equalizing line must be used between the controller and crankcase in order to equalize the pressure. The tubing must be a
minimum of 3/8” I.D. and must be kept under 2 feet. DO NOT
loop this line. It must be trap free and self draining with a
downward pitch flow by gravity.
FIGURE 1: MOUNTING EXAMPLE OF -9 ADAPTER






